
Werde Eigentümer GmbH
Herr Sebastian Ghesquier
+49 ···
Nr. anzeigenPreise & Kosten
Provision für Käufer
provisionsfrei
Lage
WOHNEN GANZ NAH DER SPREE
Angrenzend an den Charlottenburger Spreebogen und das Westfälische Viertel liegt die Beusselstrasse. Hier genießen Sie den Luxus innerhalb von drei Gehminuten wunderbar am Wasser zu entschleunigen oder mitten im "prallen Leben" zu stehen.
Der Kiez rund um die Beusselstrasse lebt von seiner...
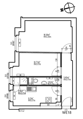
Die Wohnung
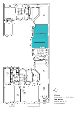
Wohnungslage
4. Geschoss
Bezug
sofort!
Wohnanlage
Energie & Heizung
Warum sehe ich diese Anzeige? – Du siehst diese Anzeige basierend auf Ihrer Navigation auf unserer Website und den Suchkriterien, die du verwendet hast.
Energieausweistyp
Verbrauchsausweis
Gebäudetyp
Wohngebäude
Wesentliche Energieträger
Fernwärme
Gültigkeit
17.06.2015 bis 16.06.2025
Effizienzklasse
C
Endenergieverbrauch
98,20 kWh/(m²·a)
Weitere Energiedaten
Energieträger
Fernwärme
Details
Objektbeschreibung
VOM WASSER UMGEBEN
Weitere Angebote finden Sie auch unter: www.beusselstr4.de
Der Beusselstrasse 4 wurde in den vergangenen Jahren durch zahlreiche Sanierungsarbeiten neues Leben eingehaucht.
Dabei verlor der Gründerzeitbau allerdings keineswegs sein charaktervolles Gesicht, sondern überzeugt weiterhin mit...
Weitere Informationen
Sonstiges
Die Bilder zeigen den aktuellen Zustand des Gebäudes und der Wohnungen.
Alle eventuell durch die WEG beschlossenen Maßnahmen sind im Kaufpreis inkludiert.
Dieses Angebot richtet sich sowohl an Selbstnutzer zum zeitnahen Bezug als auch an Kapitalanleger zur zeitnahen Vermietung.
Diesbezüglich weisen...
Anbieter der Immobilie
Werde Eigentümer GmbH
Töpferwall 2a, 17207 Röbel/Müritz
Online-ID: 2mqm65p
Referenznummer: WE251212-03-WE18
Finde Angebote wie dieses
Hier geht es zu unserem Impressum, den Allgemeinen Geschäftsbedingungen, den Hinweisen zum Datenschutz und nutzungsbasierter Online-Werbung.