
Crozilla.com
Opereta
+38 ···
Nr. anzeigenPreise & Kosten
Provision für Käufer
Bitte beachte, das Angebot kann bei Vertragsabschluss die Zahlung einer Provision beinhalten. Weitere Informationen erhältst Du vom Anbieter.
Die Immobilie
Zu diesem Angebot wurden vom Anbieter keine weiteren Daten hinterlegt. Für weitere Informationen bitte den Anbieter kontaktieren.
Nach Informationen fragenDetails
Objektbeschreibung
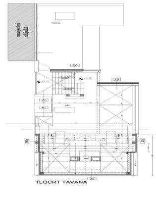
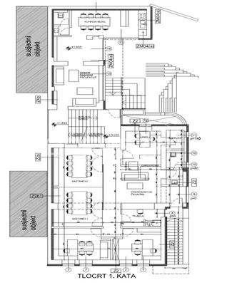
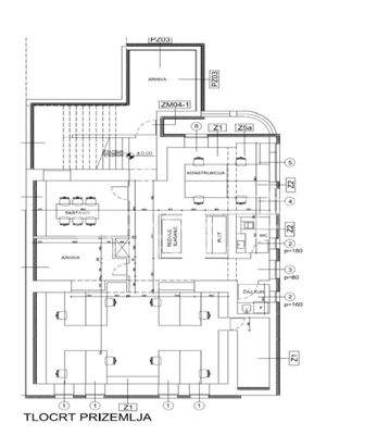
ZU VERKAUFEN, BÜROGEBÄUDE, WEINBERG, TOP-LAGE
Zum Verkauf steht ein Bürogebäude in gefragter Lage mit einer Gesamtfläche von 560 m2 NKP, bestehend aus einem Erdgeschoss, 2 Etagen und einem Dachgeschoss. Es ist teilweise dekoriert und möbliert und bietet die Möglichkeit von 2 Eingängen zum Gebäude. Es besteht aus einem...
Weitere Informationen
Stichworte
Wohnfläche: 560,00 m²
Anbieter der Immobilie
Crozilla.com
Nova cesta 60, 10000 ZAGREB
Online-ID: 2mqmx5m
Referenznummer: 17004473_6
Finde Angebote wie dieses
Hier geht es zu unserem Impressum, den Allgemeinen Geschäftsbedingungen, den Hinweisen zum Datenschutz und nutzungsbasierter Online-Werbung.