

Einfamilienhaus zum Kauf279900 €1.818 €/m²6 Zimmer • 154 m² • 1.396 m² Grundstück
279900 €
1.818 €/m²
6 Zimmer • 154 m² • 1.396 m² Grundstück
Tressow: Großzügiges Eigenheim auf herrlichem Grundstück - Einliegerwohnung möglich
Merkmale
- Bezug: Kaufpreiszahlung
- 1.396 m² Grundstück
- Einbauküche
- Keller
- 3 Stellplätze: 4 Außen-Stellplätze
- Terrasse
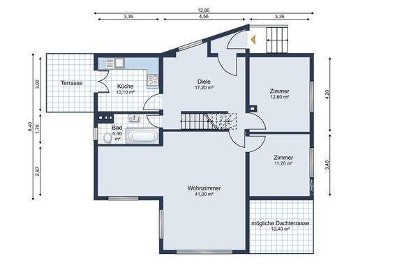
Grundrisse
Grundrisse
1 / 2
Virtueller Rundgang
Video

Realisiere Dein Projekt
Bausubstanz und Energie
Energieausweis
D
- Baujahr1978
- Zustand der ImmobilieMassivhaus
- HeizungsartZentralheizung: Fußbodenheizung
- EnergieträgerGas
Preisdetails
Kaufpreis
279900 €
1.817,53 €/m²
Provision für Käufer
3,57 % inkl. gesetzl. MwSt. vom not. Kaufpreis inkl. MwSt.
Weitere Preisinformationen
4 Stellplätze
Geschätzte Gesamtkosten
312.285 €1
Kaufpreis
279.900 €
Kaufnebenkosten
32.385 €
2Notarkosten (1,5%)
4.199 €
Grunderwerbsteuer (6%)
16.794 €
Provision für Käufer (3,57%)
9.992 €
Grundbucheintrag (0,5%)
1.400 €
1Der angezeigte Wert ist eine automatisch berechnete Schätzung von immowelt.
2Bei den Angaben handelt es sich um ortsübliche Werte. Individuelle Kosten können abweichen.
Lage

Petersdorf, Bobitz, OT Tressow (23966)
Der Anbieter hat die genaue Adresse nicht freigegeben
Weitere Informationen
Weitere Services
Lust auf eine Besichtigung?
Eine Frage zur Immobilie?
Über den Anbieter
FBR MaklerkontorMaklerbüro
Lübecker Str. 134, 19059 Schwerin
10 Jahre Partnerschaft

Herr Ingolf BräuerDein Kontakt
Online-ID: 2mqnf5g
Referenznummer: IB12284-25


FBR Maklerkontor
Bewertung: 4,2 von 5 Sternen
Wie zufrieden bist du mit dieser Seite (nicht mit der Immobilie selbst)?

