

Bien-Zenker GmbH - Mechthild Friemel
Frau Mechthild Friemel
025 ···
Nr. anzeigenPreise & Kosten
Provision für Käufer
Bitte beachte, das Angebot kann bei Vertragsabschluss die Zahlung einer Provision beinhalten. Weitere Informationen erhältst Du vom Anbieter.
Lage
Lengerich, ein charmantes Städtchen, bietet Ihnen eine hervorragende Lebensqualität mit zahlreichen Bildungs-, Gesundheits- und Einkaufsmöglichkeiten. In unmittelbarer Nähe finden Sie Schulen und Kindergärten, die Ihren Kindern eine exzellente Bildung ermöglichen. Zudem sind zahlreiche Ärzte und Gesundheitseinrichtungen...
Das Haus
Kategorie
Mehrfamilienhaus
Details
Objektbeschreibung
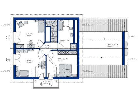
Das CELEBRATION 211 ist mehr als nur ein Fertighaus; es ist ein Ausdruck Ihrer persönlichen Wünsche und Vorstellungen. Mit einer großzügigen Wohnfläche von 211 m² und einer durchdachten Aufteilung auf zwei Etagen bietet dieses elegante Zweifamilienhaus viel Platz für individuelle Lebensstile. Es verfügt über acht Zimmer...
Ausstattung
Der Grundriss des CELEBRATION 211 ist optimal auf die Bedürfnisse von Familien und individuellen Lebensstilen abgestimmt. Mit insgesamt acht Zimmern haben Sie die Freiheit, jeden Raum nach Ihren Vorstellungen zu gestalten. Die sieben Schlafzimmer sind ideal für Familien mit Kindern oder für Gäste, während die drei Badezimmer...
Weitere Informationen
Sonstiges
PERSÖNLICHE BERATUNG MUSTERHAUS ALBERSLOH
Erleben Sie unser Musterhaus in Sendenhorst-Albersloh:
- moderne Architektur
- großzügiges, helles Haus für die ganze Familie
- modernste Effizienztechnik 40 plus mit Echtzeit-Energiemonitoring
- Wohlfühlklimaheizung
- Smarthome
- energieautark PV...
Anbieter der Immobilie
Bien-Zenker GmbH - Mechthild Friemel
Roggenkamp 19, 48324 Sendenhorst

Online-ID: 2mqng5l
Referenznummer: 12313-49525CEL210ZAF55-50
Finde Angebote wie dieses
Hier geht es zu unserem Impressum, den Allgemeinen Geschäftsbedingungen, den Hinweisen zum Datenschutz und nutzungsbasierter Online-Werbung.