
UM Immobilien
Frau Ursula Müller
+49 ···
Nr. anzeigenPreise & Kosten
Provision für Käufer
2,38 % inkl. MwSt inkl. MwSt.
Die Provision ist mit Beurkundung verdient und fällig. Sie ist in gleicher Höhe mit Käufer und Verkäufer vereinbart.
Lage
Die Wohnung befindet sich in ruhiger und gewachsener Wohnlage von Waldkraiburg, einer Stadt im oberbayerischen Landkreis Mühldorf am Inn. Das Umfeld ist geprägt von gepflegten Einfamilien- und kleineren Mehrfamilienhäusern - ideal für alle, die stadtnah wohnen und dennoch Ruhe und Privatsphäre genießen möchten.
Alle...
Die Wohnung
Wohnungslage
1. Geschoss (Dachgeschoss)
Bezug
nach Vereinbarung
Wohnanlage
Energie & Heizung
Warum sehe ich diese Anzeige? – Du siehst diese Anzeige basierend auf Ihrer Navigation auf unserer Website und den Suchkriterien, die du verwendet hast.
Energieausweistyp
Bedarfsausweis
Gebäudetyp
Wohngebäude
Baujahr laut Energieausweis
2000
Wesentliche Energieträger
Gas
Gültigkeit
23.11.2025 bis 22.11.2035
Effizienzklasse
G
Endenergiebedarf
201,90 kWh/(m²·a)
Weitere Energiedaten
Energieträger
Gas
Heizungsart
offener Kamin
Details
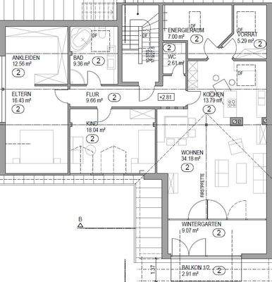
Objektbeschreibung
Diese charmante Dachgeschosswohnung verbindet helles, offenes Wohnen mit besonderem Flair und bietet zugleich viel Platz für individuelle Wohnideen.
Das Haus selbst stammt aus dem Jahr 1979, die Aufstockung erfolgte 1996 und der Dachgeschossausbau wurde zwischen 2000 und 2003 realisiert. Dadurch entstand eine moderne...
Ausstattung
- 2 Schlafzimmer + große Wohn-Ess-Küche + Wintergarten
- Heizung: eigene Gastherme (Wohnung separat versorgt)
- Balkon, um die Sonnenstunden zu genießen
- lichtdurchfluteter Wintergarten, direkt an den Wohnbereich anschließend
- Tageslichtbad
- separates Gäste-WC
- Heizraum + Vorratsraum in der Wohnung
-...
Weitere Informationen
Sonstiges
Haftung:
Die von uns gemachten Informationen zu Objekt, Plänen und Unterlagen beruhen auf Angaben des Verkäufers bzw. der Verkäuferin. Für die Richtigkeit und Vollständigkeit der Angaben kann keine Gewähr bzw. Haftung übernommen werden. Ein Zwischenverkauf, Änderungen und Irrtümer sind vorbehalten.
GwG...
Anbieter der Immobilie
Online-ID: 2mqr75v
Referenznummer: 9854#4xmIak
Finde Angebote wie dieses
Hier geht es zu unserem Impressum, den Allgemeinen Geschäftsbedingungen, den Hinweisen zum Datenschutz und nutzungsbasierter Online-Werbung.