
Hartig & Kollegen Immobilien
Herr Marc Hartig
077 ···
Nr. anzeigenPreise & Kosten
Provision für Käufer
provisionsfrei
Lage
Schwörstadt liegt zwischen 296 bis 481 Meter Höhe unmittelbar zwischen dem Hochrhein im Süden und dem Dinkelberg, einem Ausläufer des Südschwarzwalds, im Norden. Zu Schwörstadt gehören die Ortsteile Niederdossenbach und Dossenbach.
Die Besiedlung der Umgebung Schwörstadts reicht bis in die Steinzeit zurück. Das bezeugt...
Das Haus
Kategorie
Reihenendhaus
Baujahr
1900
Energie & Heizung
Warum sehe ich diese Anzeige? – Du siehst diese Anzeige basierend auf Ihrer Navigation auf unserer Website und den Suchkriterien, die du verwendet hast.
Weitere Energiedaten
Haustyp
Massivhaus
Details
Objektbeschreibung
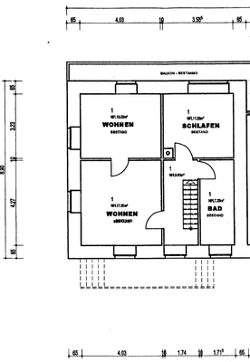
Das massiv erbaute Reihenendhaus mit ca. 154 m² Wohnfläche befindet sich in einem ruhigen Wohngebiet im nördlichen Teil von Schwörstadt, naturnah in der Nähe des Waldrandes. Zahlreiche Wander- und Waldwege, sowie der nahegelegene Rhein bieten Ihnen verschiedenste Ausflugsziele, ob zu Fuß oder mit dem Rad.
Die...
Weitere Informationen
Sonstiges
Der Energieausweis ist in Bearbeitung, die Daten folgen nach Erhalt.
Anbieter der Immobilie
Hartig & Kollegen Immobilien
Hauptstr. 20, 79664 Wehr
Online-ID: 2mqu35k
Referenznummer: 251104
Finde Angebote wie dieses
Hier geht es zu unserem Impressum, den Allgemeinen Geschäftsbedingungen, den Hinweisen zum Datenschutz und nutzungsbasierter Online-Werbung.