

GfG Hoch-Tief-Bau GmbH & Co. KG
040 ···
Nr. anzeigenPreise & Kosten
Provision für Käufer
3,57% auf den Grundstückspreis
Lage
Das Grundstück befindet sich in einer ruhigen Wohngegend im Hamburger Stadtteil Öjendorf, am östlichen Rand von Billstedt. Die Lage verbindet naturnahe Erholung mit guter städtischer Infrastruktur und bietet somit eine angenehme Mischung aus Rückzug und Alltagstauglichkeit.
Der Öjendorfer Steinkamp ist eine...
Das Haus
Geschosse
2 Geschosse
Baujahr
2025
Bezug
2026
Energie & Heizung
Warum sehe ich diese Anzeige? – Du siehst diese Anzeige basierend auf Ihrer Navigation auf unserer Website und den Suchkriterien, die du verwendet hast.
Weitere Energiedaten
Haustyp
Massivhaus
Energieträger
Elektro, Solar
Heizungsart
Fußbodenheizung, Luft-/Wasser-Wärmepumpe, Zentralheizung
Details
Objektbeschreibung
In Öjendorf entwickeln wir Ihr neues Zuhause.
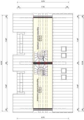
Das hier angebotene Grundstück hat eine Größe von ca. 232 m² mit einer Wohnfläche von ca. 110m² zuzüglich 15 m² Ausbaureserve im Spitzboden.
Der Gesamtpreis DHH 1 beträgt € 611.400,-
Das Grundstück kann von außerhalb angeschaut werden. Zur Begehung des...
Weitere Informationen
Stichworte
Versorgung: Städtische Wasserversorgung, Städtische Stromversorgung
Dokumente
Anbieter der Immobilie
Online-ID: 2mquj5f
Referenznummer: DW_ÖS_3
Finde Angebote wie dieses
Hier geht es zu unserem Impressum, den Allgemeinen Geschäftsbedingungen, den Hinweisen zum Datenschutz und nutzungsbasierter Online-Werbung.