
LIND Immobilien GmbH
Herr Franz Lind
+43 ···
Nr. anzeigenPreise & Kosten
Provision für Käufer
3% des Kaufpreises zzgl. 20% USt.
Das Renditeobjekt
Kategorie
Mehrfamilienhaus
Energie & Heizung
Warum sehe ich diese Anzeige? – Du siehst diese Anzeige basierend auf Ihrer Navigation auf unserer Website und den Suchkriterien, die du verwendet hast.
Heizwärmebedarf (HWB)
80,30 kWh/(m²·a)
Gesamtenergieeffizienz (fGEE)
1,42
Weitere Energiedaten
Energieträger
Öl
Heizungsart
Zentralheizung
Details
Objektbeschreibung
Attraktive Anlageimmobilie in der Bezirkshauptstadt Fürstenfeld, Oststeiermark
Ich freue mich auf Ihren Anruf
Franz Lind 0699 1008 5785
Diese wertvolle Anlage in der charmanten Bezirkshauptstadt Fürstenfeld bietet eine hervorragende Gelegenheit für Investoren.
Das Objekt umfasst insgesamt 55...
Preisinformation
6 Stellplätze
Weitere Informationen
Stichworte
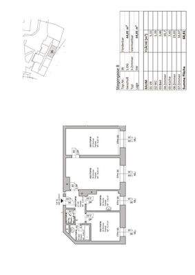
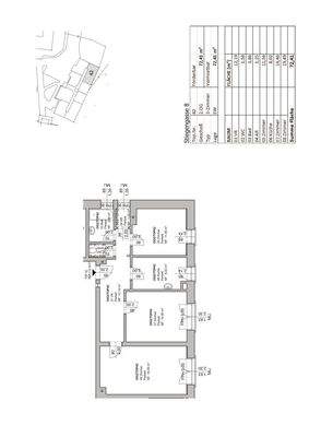
Wohnfläche: 901,98 m², Anzahl Balkone: 3, Bundesland: Steiermark
Anbieter der Immobilie
Online-ID: 2mqup5s
Referenznummer: OBGC20251221074503375e69deea0f7
Finde Angebote wie dieses
Günstige Immobilienfinanzierung einfach online berechnen
Persönliches Angebot berechnenWarum sehe ich diese Werbung? – Du siehst diese Werbung basierend auf Deiner Navigation auf unserer Website und der von Dir verwendeten Suchkriterien.
Diese Werbung wird bezahlt von durchblicker
Werbung melden
Hier geht es zu unserem Impressum, den Allgemeinen Geschäftsbedingungen, den Hinweisen zum Datenschutz und nutzungsbasierter Online-Werbung.