Manz Baubetreuungs- und Beratungs-GmbH

Frau Martina Saile

Praxisräume in Radolfzell mit Balkon und Seesicht zu vermieten

€ 720
Nettomiete zzgl. NK
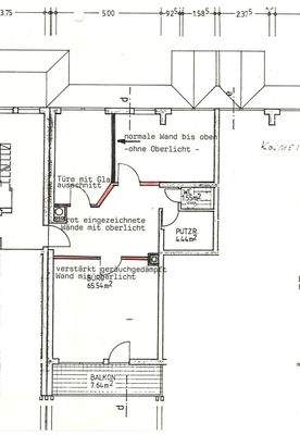
65,54 m²
Bürofläche ca.
k.A.
Teilbare Fläche
k.A.
Zimmer

Der Anbieter dieses Objekts hat gegenüber der AVIV Germany GmbH als Betreiber dieses Online-Marktplatzes erklärt, nicht als Unternehmer im Sinne des § 1 KSchG zu handeln. Die im Verbraucherschutzrecht der Union verankerten Verbraucherrechte (insbesondere Informationspflichten und Rücktritts- bzw. Widerrufsrechte) finden auf den Vertrag zwischen dem Anbieter des Objekts und Ihnen (dem Interessenten) keine Anwendung.

Gewerblicher Anbieter

Der Anbieter dieses Objekts hat gegenüber der AVIV Germany GmbH als Betreiber dieses Online-Marktplatzes erklärt, als Unternehmer im Sinne des § 1 KSchG zu handeln.

AdresseStraße nicht freigegeben
78315 Radolfzell am Bodensee 
Auf Karte ansehen

Preise & Kosten

Nettomiete € 720 Nebenkosten € 175 Heizkosten in Warmmiete enthalten Warmmiete € 895

Kaution

2.685,00 3 KM

Provision für Mieter

1,785 Monatskaltmieten incl. MwSt.

Lage

Zentrale Lage in Radolfzell gut mit Auto oder zu Fuß zu erreichen.

Büro-/Praxisfläche

Kategorie

Praxisfläche

Baujahr

1984

Bezug

01.02.2026

  • Böden: Parkett
  • gepflegt
  • Personenaufzug

Energie & Heizung

Wärme

0 100 200 300 400 500 600 700 800 900 1000 +

Energieausweistyp

Verbrauchsausweis

Gebäudetyp

Nicht-Wohngebäude

Wesentliche Energieträger

GAS

Gültigkeit

bis 07.09.2028

Endenergieverbrauch (Wärme)

77,00 kWh/(m²·a)

Details

Objektbeschreibung

Hier werden in einem Mehrfamilienhaus mit Wohnungen und Gewerbeeinheiten Praxisräume vermietet. Die Räume liegen im 1. Obergeschoss und sind barrierefrei mit Lift zu erreichen.

Ausstattung

Die Praxis hat aktuell zwei Behandlungsräume sowie einen Empfangsbereich und ein Wartezimmer. Eine Toilette und ein Abstellraum runden das Raumangebot ab.

Auf dem Südbalkon haben Sie eine herrliche Seesicht. Die Räume sind hell und freundlich. Alle Böden sind mit Parkett verlegt.

Zur Praxis kann noch ein...

Mehr anzeigen

Preisinformation

Nettokaltmiete: 720,00 EUR

Weitere Informationen

Sonstiges
Radolfzell am Bodensee ist eine Stadt am nordwestlichen Ufer des Untersees, einem Teilsee des Bodensees, etwa 20 km nordwestlich von Konstanz und 10 km östlich von Singen (Hohentwiel) und nach diesen die drittgrößte Stadt im Landkreis Konstanz, am Untersee. Radolfzell bildet ein Mittelzentrum für die umliegenden...

Mehr anzeigen

Anbieter der Immobilie

Partner

Manz Baubetreuungs- und Beratungs-GmbH

im Durchschnitt  4,20  Sterne
(bei 13 Bewertungen)

Scheffelstr. 4, 78315 Radolfzell

user

Frau Martina Saile

Dein Ansprechpartner

Anbieter-Website Anbieter-Profil Anbieter-Impressum

Online-ID: 2mqv45g

Referenznummer: MS-1773

Finde Angebote wie dieses

imageimageimage

Hier geht es zu unserem Impressum, den Allgemeinen Geschäftsbedingungen, den Hinweisen zum Datenschutz und nutzungsbasierter Online-Werbung.