

M.Maile Immobilien GmbH
Herr Philipp Walz
071 ···
Nr. anzeigenPreise & Kosten
Kaution
5.505,00 3 KMM
Warum sehe ich diese Anzeige? – Du siehst diese Anzeige basierend auf Ihrer Navigation auf unserer Website und den Suchkriterien, die du verwendet hast.
Lage
Das Gebäude befindet sich im Herzen von Stuttgart- Heslach. Die U-Bahnhaltestelle Bihlplatz mit den Linien U1, U9 und U34 ist nur 2 Min. zu Fuß entfernt.
Auch Läden des täglichen Bedarfs, Restaurants und Bars, aber auch der Wald sind in unmittelbarer Nähe.
Die Stuttgarter Innenstadt ist bequem und schnell in ca 10 Min...
Die Wohnung
Wohnungslage
4. Geschoss
Bezug
sofort
Wohnanlage
Energie & Heizung
Warum sehe ich diese Anzeige? – Du siehst diese Anzeige basierend auf Ihrer Navigation auf unserer Website und den Suchkriterien, die du verwendet hast.
Energieausweis: für diesen Gebäudetyp nicht notwendig
Weitere Energiedaten
Heizungsart
Etagenheizung
Details
Objektbeschreibung
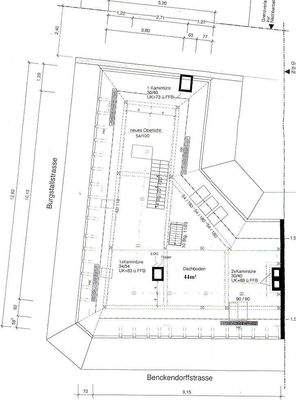
Die Wohnung geht über 2 Etagen und ist daher neben Familien auch für Paare und WGs geeignet.
Die Wohnung befindet sich insgesamt in einem gepflegten Zustand.
Der ausgebaute Dachstuhl ist äußerst lichtdurchflutet und kann als geräumiger Wohnraum genutzt werden.
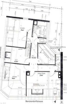
Im unteren Teil der Wohnung befinden sich insgesamt 3...
Ausstattung
In der Wohnung befindet sich ein sehr schöner Holzboden, Bad und WC sind gefliest und in neuwertigen Zustand.
Das Tageslicht- Badezimmer besitzt eine Badewanne und ist sehr geräumig. Auch die Waschmaschine kann hier angeschlossen werden.
Weitere Informationen
Sonstiges
Der Keller befindet sich im UG.
Die Kehrwoche muss im regelmäßigem Abstand gemacht werden.
In den Betriebskosten sind die Kosten für die Warmwasseraufbereitung, Heizkosten und Stromkosten nicht enthalten, diese muss der Mieter direkt bei einem Energieversorger abschließen.
Bitte senden Sie...
Anbieter der Immobilie
M.Maile Immobilien GmbH
Tübingerstr 19, 70178 Stuttgart

Online-ID: 2mqvl5u
Referenznummer: 1093
Finde Angebote wie dieses
Hier geht es zu unserem Impressum, den Allgemeinen Geschäftsbedingungen, den Hinweisen zum Datenschutz und nutzungsbasierter Online-Werbung.