
Innovationsfabrik GmbH
Frau Anett Horvath
+49 ···
Nr. anzeigenPreise & Kosten
Provision für Käufer
provisionsfrei
Lage
Ernsgaden ist eine familienfreundliche Gemeinde im oberbayerischen Landkreis Pfaffenhofen an der Ilm und liegt nur rund 15 km vom Stadtzentrum Ingolstadts entfernt.
Die Lage bietet den idealen Mix aus Ruhe, Dorfidylle und gleichzeitig kurzer Anbindung an wichtige Arbeitgeber und urbane Infrastruktur. Damit eignet sich...
Das Haus
Kategorie
Einfamilienhaus
Baujahr
2026
Bezug
01.07.2026
Energie & Heizung
Warum sehe ich diese Anzeige? – Du siehst diese Anzeige basierend auf Ihrer Navigation auf unserer Website und den Suchkriterien, die du verwendet hast.
Weitere Energiedaten
Energieträger
Solar
Heizungsart
Fußbodenheizung, Luft-/Wasser-Wärmepumpe
Details
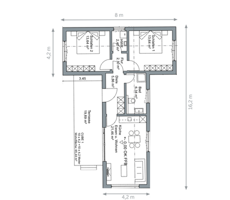
Objektbeschreibung
In Ernsgarden entsteht eine moderne Cube-Siedlung mit hochwertigen, in Deutschland gefertigten Holzmodulhäusern. Die vielseitigen Cubes verbinden nachhaltige Bauweise, flexible Planung und maximale Mobilität. Sie sind in vielen Größen und Varianten erhältlich – vom kompakten Modul bis zur großzügigen Wohnlösung – und können...
Ausstattung
Schlüsselfertige Übergabe - sofort bezugsbereit, inkl. vollständiger Innenausbau
Großzügige Holzterrasse - idealer Außenbereich mit natürlichem Charme
Eigener Stellplatz - direkt am Objekt, komfortabel erreichbar
Elektrische Fußbodenheizung - effizient und angenehm temperiert
Moderne Luftwärmepumpe -...
Weitere Informationen
Eigenes Grundstück?
Gerne planen wir Ihr Wunschhaus und /oder Cube individuell auf Ihr Grundstück zugeschnitten und führen die gesamten Bauphasen bis zur Schlüsselübergabe aus. Dabei achten wir auf natürliche Baustoffe und arbeiten in ökologischer Bauweise.
Informieren Sie sich unter:
www.ligo-cube.de
oder...
Anbieter der Immobilie
Innovationsfabrik GmbH
Niederfelderstrasse 15, 85053 Ingolstadt
Online-ID: 2mqwc5p
Finde Angebote wie dieses
Hier geht es zu unserem Impressum, den Allgemeinen Geschäftsbedingungen, den Hinweisen zum Datenschutz und nutzungsbasierter Online-Werbung.