
Pamela Tomas
Frau Pamela Tomas
Kontaktiere den Anbieter schriftlich, es ist keine Telefonnummer hinterlegt.
Preise & Kosten
Provision für Käufer
3,00% plus MwSt
Lage
Die Wohnung befindet sich in einer begehrten Wohnlage im Südosten Münchens - ideal für alle, die urbanes Leben und Ruhe verbinden möchten. Die Umgebung überzeugt durch eine hervorragende Infrastruktur, kurze Wege zu Einkaufsmöglichkeiten, Cafés, Restaurants, Schulen und vielfältigen Freizeitangeboten.
Dank der guten...
Die Wohnung
Wohnanlage
Energie & Heizung
Warum sehe ich diese Anzeige? – Du siehst diese Anzeige basierend auf Ihrer Navigation auf unserer Website und den Suchkriterien, die du verwendet hast.
Energieausweistyp
Verbrauchsausweis
Gebäudetyp
Wohngebäude
Baujahr laut Energieausweis
2023
Wesentliche Energieträger
UMWELTWAERME
Gültigkeit
bis 27.02.2034
Effizienzklasse
A+
Endenergieverbrauch
17,50 kWh/(m²·a)
Weitere Energiedaten
Heizungsart
Luft-/Wasser-Wärmepumpe
Details
Objektbeschreibung
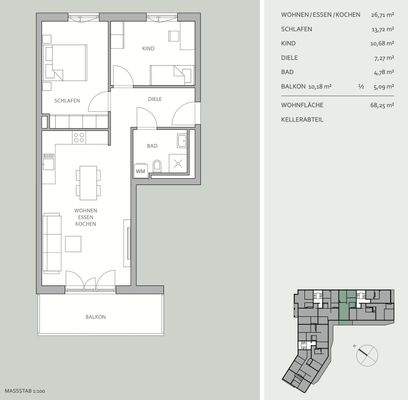
Top-Kapitalanlage in München - moderne 3-Zimmer-Wohnung mit WG-Potenzial
Diese moderne 3-Zimmer-Wohnung aus dem Jahr 2024 bietet nicht nur stilvolles Design und hochwertige Ausstattung, sondern auch maximales Vermietungspotenzial auf rund 68 m² - perfekt für Kapitalanleger oder WG-Vermietung.
Dank zwei separater...
Preisinformation
1 Garagenstellplatz, Kaufpreis: 39.000,00 EUR
Weitere Informationen
Stichworte
Anzahl der Schlafzimmer: 2, Anzahl der Badezimmer: 1, Anzahl Balkone: 1, 2 Etagen
Anbieter der Immobilie
Pamela Tomas
Am Steinigen Graben 21, 86911 Riederau
Frau Pamela Tomas
Dein Ansprechpartner
Kontaktiere den Anbieter schriftlich, es ist keine Telefonnummer hinterlegt.
Online-ID: 2mqxe5p
Referenznummer: 2025-109
Finde Angebote wie dieses
Hier geht es zu unserem Impressum, den Allgemeinen Geschäftsbedingungen, den Hinweisen zum Datenschutz und nutzungsbasierter Online-Werbung.