
ÖRAG Immobilien Vermittlung GmbH
Frau Elena Pfurtscheller, BA
004 ···
Nr. anzeigenPreise & Kosten
inkl. Betriebskosten
Kaution
5.400,00
Provision für Mieter
provisionsfrei für den Mieter inkl. MwSt.
Warum sehe ich diese Anzeige? – Du siehst diese Anzeige basierend auf Ihrer Navigation auf unserer Website und den Suchkriterien, die du verwendet hast.
Lage
Die Lage, im Herzen von Hernals bietet eine hervorragende Infrastruktur, Geschäfte des täglichen Bedarfs und nette Lokale befinden sich in unmittelbarer Umgebung. Für eine gute öffentliche Anbindung sorgen die Straßenbahnlinien 9 und 43 sowie zahlreiche Buslinien.
Außerdem stehen 4 PKW-Stellplätze im Innenhof zu einer...
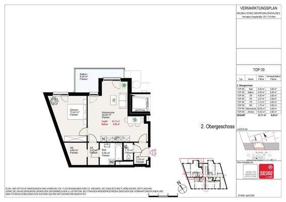
Die Wohnung
Wohnungslage
2. Geschoss
Bezug
Sofort
Wohnanlage
Energie & Heizung
Warum sehe ich diese Anzeige? – Du siehst diese Anzeige basierend auf Ihrer Navigation auf unserer Website und den Suchkriterien, die du verwendet hast.
Heizwärmebedarf (HWB)
22,70 kWh/(m²·a)
Gesamtenergieeffizienz (fGEE)
0,72
Weitere Energiedaten
Heizungsart
Fußbodenheizung, Zentralheizung
Details
Objektbeschreibung
Kurzbeschreibung
Direkt an der Hernalser Hauptstraße, in unmittelbarer Nähe zur Wattgasse wurde eben, dieses moderne Neubauprojekt mit nur 20 Wohnungen, in nachhaltiger Niedrigenergiebauweise errichtet.
Objekt
Direkt an der Hernalser Hauptstraße, in unmittelbarer Nähe zur Wattgasse wurde eben, dieses moderne...
Ausstattung
Bei der Ausstattung wurde auf hochwertige Materialien zurückgegriffen, dazu zählen edle Eichenparkettböden, moderne Einbauküchen, elegante Sanitärräume, außen liegende Raffstores sowie Sicherheitseingangstüren (WK3). Die Dachgeschoß-Wohnungen verfügen über eine Klimatisierung mittels Betonkern-/Bauteilaktivierung. Die...
Preisinformation
Nettokaltmiete: 1.026,64 EUR
Weitere Informationen
Sonstiges
Wir sind eine Tochtergesellschaft der ÖRAG-Österreichische Realitäten AG, Wien, genannt ÖRAG, und es besteht daher unter Umständen ein sonstiges wirtschaftliches Naheverhältnis im Sinne des Maklergesetzes zur ÖRAG und ihren anderen Tochtergesellschaften in Österreich. Das Naheverhältnis zur ÖRAG ergibt sich zB...
Dokumente
Anbieter der Immobilie
Online-ID: 2mqy25n
Referenznummer: 109257384
Finde Angebote wie dieses
Hier geht es zu unserem Impressum, den Allgemeinen Geschäftsbedingungen, den Hinweisen zum Datenschutz und nutzungsbasierter Online-Werbung.