Version: 8.24.1Navigation überspringen
380.000 €
465 m² Grundstück
Immowelt logo

Gastronomie/Hotel zum Kauf
380000 €
465 m² Grundstück

Gut verpachtetes Restaurant "Bär und Schaf Wirtschaft" mit 2 Wohnungen in Völkermarkt sucht neuen Eigentümer!

Sie wollen sich als Gastronom selbständig machen? Wie wäre es mit einem perfekt etablierten Gasthaus in der Völkermarkter Altstadt?
 

In dieser geschichtsträchtigen Liegenschaft an der Stadtmauer von Völkermarkt vereinen sich Charme und Geschmack.
Das traditionelle Ambiente der Gasträumlichkeiten ist hier geschmackvoll erhalten geblieben und wurde stilvoll mit zeitgenössischer Kunst kombiniert.
 

Aufgrund der spätbarocken Fassadengliederung steht das Haus unter Denkmalschutz und es wurde laufend mit viel Hingabe saniert.
Im Erdgeschoss sind die voll ausgestatteten Gastronomie-Räumlichkeiten, im Obergeschoss stehen zwei gemütliche Wohnungen zur Verfügung.
 

Die Lage in Völkermarkt ist erstklassig, diverse Infrastruktureinrichtungen sind fußläufig erreichbar!
Es stehen aber gleichzeitig auch Besucherparkplätze bereit.

 

 

 

Der Gastronomie-Bereich im Erdgeschoss umfasst:

* eine sehr gut ausgestattete Gastroküche
* zwei Gasträume mit insgesamt ca.70 Sitzplätzen (50 in den Gasträumen und 20 im Gastgarten)
* Veranstaltungsraum / Galerieräumlichkeiten
* Ausschank
* Sanitärräume
* Abstellraum
* Eingangsbereich
* Keller/Lagerraum
 

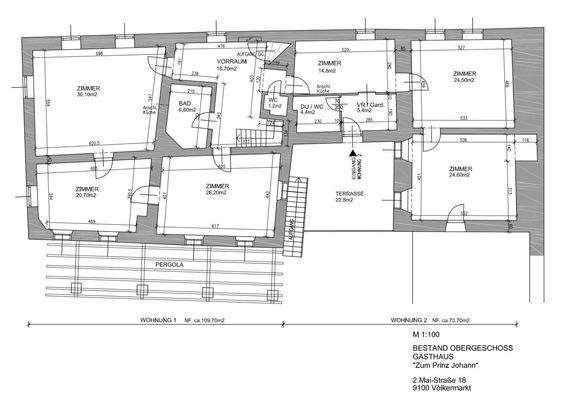
Im Obergeschoss finden sich:

* eine Wohnung mit ca. 100m² mit zwei Schlafzimmern, einem großen, offenen Wohnraum inkl. Küche
* eine Wohnung mit ca. 80m² mit einem Wohnzimmer, einem Schlafzimmer und Terrasse

Es besteht die Möglichkeit diese beiden Wohnung zu einer großen Wohnung zusammen zu legen.

Das Dachgeschoss könnte ebenfalls noch ausgebaut werden.
 

Außenbereich:
Angrenzend an das Haus ist ein romantischer Laubengang, der als Gastgarten Verwendung findet.
Straßenseitig gibt es 3 eigene Autoabstellplätze.
 

Energieversorgung:
Beheizt wird das Objekt mittels Fernwärme. Die Wärmeverteilung im Haus erfolgt über Heizkörper bzw, teilweise über Bodenheizung.

Weitere Information:
Das Gasthaus ist bis Ende 2026 ganzjährig verpachtet und sehr gut geführt.
Das Restaurant "Bär und Schaf Wirtschaft" setzt auf hochwertige Grundprodukte von Landwirten und Produzenten aus der Umgebung, frisch gekocht und unkompliziert angerichtet.
Ihr Motto: "Alte Teller, junge Küche, lokale Produkte und viele gute Weine!"
Damit schaffen es die talentierten Pächter nicht nur mit heimischen Produkten ein großartiges Geschmackserlebnis zu erzeugen, sondern auch Gäste zu begeistern, die eigens von Nah und Fern anreisen um ihre Küche zu genießen.

https://www.baerundschafwirtschaft.at/

Der bestehende Pachtvertrag kann ab 31.12.2026 entweder verlängert, oder beendet werden - je nach Bedarf.
 

 

Kaufpreis: € 380.000,-

zzgl. Kaufnebenkosten:
Grunderwerbsteuer: 3,5%
Eintragungsgebühr: 1,1%
Kaufvertragserrichtung: ca. 1,5 % netto von der Kaufsumme inkl. Treuhänder-Abwicklung
Maklerprovision: 3 % der Kaufsumme zzgl. 20 % USt

Finanzierung:
Auf Wunsch wird auch die Finanzierung von unserem Fachberater gerne für Sie erstellt.

Verkaufsabwicklung:
Treuhändische Abwicklung beim Notar.

Für weitere Informationen stehen wir Ihnen natürlich gerne zur Verfügung. Besichtigungstermine jederzeit nach Vereinbarung.
Wir bitten um Ihr Verständnis, dass Besichtigungen nur mit Angabe Ihrer vollständigen Kontaktdaten möglich sind, da wir dem Abgeber gegenüber nachweisverpflichtet sind.

Alle Angaben lt. Abgeber - Irrtümer vorbehalten.

 

 

 

 

 

Anfragen unter:
Laura Mallegg, Ja-Wohnen
Immobilienmaklerin, Immobilientreuhänderin
Email: laura.mallegg@ja.or.at
Tel. 0664 - 4109142
Web: www.ja-wohnen.at

 

Allgemeiner Hinweis:
Die angegebenen Daten stammen vom Eigentümer und/oder Dritten und wurden mit Sorgfalt erhoben. Für die Richtigkeit und Vollständigkeit kann jedoch keine Haftung übernommen werden. Zahlenangaben können gegebenenfalls gerundet oder geschätzt sein. Das Anbot ist freibleibend und unverbindlich. Irrtümer und Änderungen sind vorbehalten. Nachdruck/Vervielfältigung nur mit Genehmigung der Firma Ja-Wohnen FlexCo.

Merkmale

  • Bezug: nach Absprache
  • 465 m² Grundstück
  • 3 Stellplätze: 3 Außen-Stellplätze
  • Balkon
  • Terrasse
  • Bodenbelag: Fliesen, Holzdielen, Laminat, Stein

Grundrisse

Grundrisse
1 / 3

Realisiere Dein Projekt

Bausubstanz und Energie

Der Anbieter hat keine Informationen zum Energieverbrauch bereit gestellt.
  • Zustand der ImmobilieMassivhaus
  • EnergieträgerFernwärme
Immowelt logo

Preisdetails

Kaufpreis
380000 €
Provision für Käufer
3% des Kaufpreises zzgl. 20% USt.
Weitere Preisinformationen
3 Stellplätze

Lage

address-icon
Völkermarkt (9100)
Altstadt von Völkermarkt

Weitere Informationen

Stichworte Stellplatz vorhanden, Anzahl Balkone: 1, Anzahl Terrassen: 1, Bundesland: Kärnten, 2 Etagen, modernisiert: 2020

Weitere Services

Lust auf eine Besichtigung?
Eine Frage zur Immobilie?
Nachricht hinzufügen
Mit der Nutzung der oben angegebenen Telefonnummer oder durch Klicken auf „Kontaktieren“ akzeptierst Du die Allgemeinen Nutzungsbedingungen, denen Du jederzeit widersprechen kannst. Weitere Informationen zum Datenschutz

Über den Anbieter

JA-Wohnen FlexCoMaklerbüro
Birkengasse 4, 9020 KLAGENFURT
partner badge
Partnerschaft
Frau Laura MalleggDein Kontakt
Online-ID: 2mqyz5f
Referenznummer: OBGC20240228131436600e40ad0bf53
JA-Wohnen FlexCo
Nachricht hinzufügen
Mit der Nutzung der oben angegebenen Telefonnummer oder durch Klicken auf „Kontaktieren“ akzeptierst Du die Allgemeinen Nutzungsbedingungen, denen Du jederzeit widersprechen kannst. Weitere Informationen zum Datenschutz
Wie zufrieden bist du mit dieser Seite (nicht mit der Immobilie selbst)?