
Grossmann & Berger GmbH
Herr Leon Müller
004 ···
Nr. anzeigenPreise & Kosten
Provision für Mieter
provisionsfrei
Warum sehe ich diese Anzeige? – Du siehst diese Anzeige basierend auf Ihrer Navigation auf unserer Website und den Suchkriterien, die du verwendet hast.
Büro-/Praxisfläche
Kategorie
Bürofläche
Baujahr
2025
Bezug
01.06.2026
Details
Objektbeschreibung
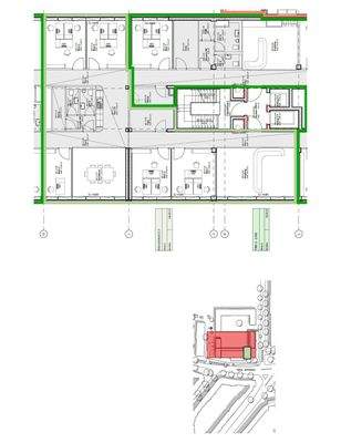
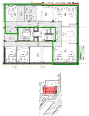
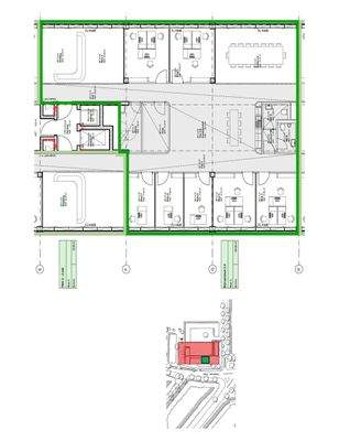
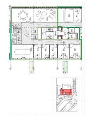
An der Steilshooper Straße 190-192 entsteht bis 2026 ein moderner Büroneubau mit klarer Architektur und hoher Ausstattungsqualität. Auf insgesamt ca. 1.670 m² verteilen sich flexibel teilbare Büroeinheiten zwischen ca. 220 m² und 376 m², die unterschiedlichste Nutzungsmodelle ermöglichen - vom offenen Workspace bis zu...
Weitere Informationen
Provisionshinweis
* Die Courtagefreiheit dieser Vermietung setzt einen Mietvertragsabschluss mit einer Mindest-Vertragslaufzeit von 5 Jahren voraus. Für den Fall der kurzfristigeren Vertragslaufzeit wird dem Mieter eine Courtage in Höhe von 3 Brutto-Monatsmieten zzgl. gesetzl. MwSt. berechnet.
Sonstiges
Hinweis...
Anbieter der Immobilie
Online-ID: 2mr265h
Referenznummer: BO 5978
Finde Angebote wie dieses
Hier geht es zu unserem Impressum, den Allgemeinen Geschäftsbedingungen, den Hinweisen zum Datenschutz und nutzungsbasierter Online-Werbung.