

Jost Immobilien GmbH
Frau Melanie Kremers
021 ···
Nr. anzeigenPreise & Kosten
Provision für Käufer
3,57 % inkl. der gesetzl. MwSt., bezogen auf den Kaufpreis
Lage
Unser Einfamilienhaus liegt im idyllischen Lüttelforst, einer malerischen Ortschaft im ruhigen und naturnahen Schwalmtal - ideal für Familien und Naturliebhaber.
Besonders hervorzuheben ist die ausgezeichnete Verkehrsanbindung: In nur etwa 1,8 km Entfernung befindet sich die Autobahn, die eine schnelle und bequeme...
Das Haus
Kategorie
Einfamilienhaus
Baujahr
1980
Energie & Heizung
Warum sehe ich diese Anzeige? – Du siehst diese Anzeige basierend auf Ihrer Navigation auf unserer Website und den Suchkriterien, die du verwendet hast.
Energieausweistyp
Verbrauchsausweis
Gebäudetyp
Wohngebäude
Baujahr laut Energieausweis
1980
Wesentliche Energieträger
OEL
Gültigkeit
bis 05.01.2032
Effizienzklasse
G
Endenergieverbrauch
216,90 kWh/(m²·a)
Weitere Energiedaten
Energieträger
Öl
Heizungsart
offener Kamin, Zentralheizung
Details
Objektbeschreibung
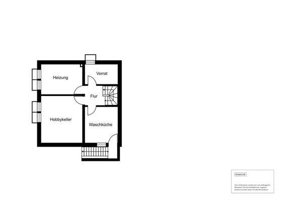
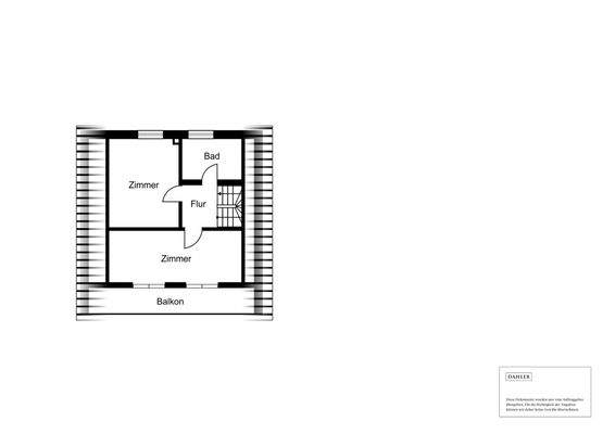
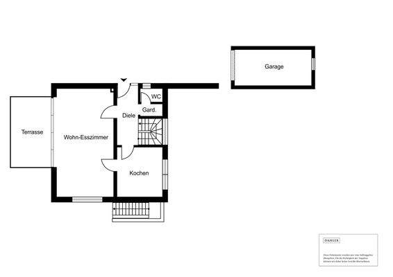
Dieses gepflegte Einfamilienhaus in solider Massivbauweise wurde 1980 errichtet und bietet ca. 112 m² Wohnfläche. Es befindet sich auf einem traumhaften, insgesamt 3.731 m² großen Grundstück (2 Flurstücke) - viel Platz für Garten, Freizeit und individuelle Gestaltungsideen.
Im Erdgeschoss erwarten Sie ein großzügiger...
Ausstattung
- Fliesen und Holzboden im Erdgeschoss
- Teppichboden im Obergeschoss
- Holztüren
- Wände und Decke in Weiß gehalten
- Kamin
- Brunnenanschluss
- Doppelt verglaste Fenster mit Rollläden
- Heizungsbrenner 2018 erneuert
Preisinformation
1 Garagenstellplatz
Weitere Informationen
Stichworte
Nutzfläche: 49,00 m², Anzahl der Schlafzimmer: 2, Anzahl der Badezimmer: 1, Anzahl Terrassen: 1, 1 Etagen, Distanz zum Kindergarten: 0.05, Distanz zur Grundschule: 4.40, Distanz zur Realschule: 4.40, Distanz zur nächsten Einkaufsmöglichkeit: 11.10, Distanz zum Gymnasium: 3.35, Distanz zum Flughafen: 23.00...
Anbieter der Immobilie
Jost Immobilien GmbH
Am Nordpark 1, 41069 Mönchengladbach

Online-ID: 2mr3259
Referenznummer: JO-IM14380
Finde Angebote wie dieses
Hier geht es zu unserem Impressum, den Allgemeinen Geschäftsbedingungen, den Hinweisen zum Datenschutz und nutzungsbasierter Online-Werbung.