

Mutzhas Immobilien GmbH & Co. KG
Herr Oliver Gerstner
017 ···
Nr. anzeigenPreise & Kosten
Provision für Käufer
2,38 % inkl. ges. MwSt. inkl. MwSt.
Lage
Karlsfeld bei Dachau überzeugt durch seine attraktive Kombination aus naturnahem Wohnen, hervorragender Infrastruktur und unmittelbarer Nähe zur Landeshauptstadt München. Die Gemeinde bietet ihnen eine hohe Lebensqualität - ideal für Familien, Pendler und Ruhesuchende gleichermaßen. Die Herbsstaße liegt in einem sehr ruhigen...
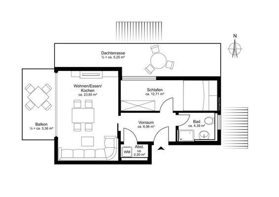
Die Wohnung
Kategorie
Terrassenwohnung
Wohnanlage
Energie & Heizung
Warum sehe ich diese Anzeige? – Du siehst diese Anzeige basierend auf Ihrer Navigation auf unserer Website und den Suchkriterien, die du verwendet hast.
Energieausweistyp
Bedarfsausweis
Gebäudetyp
Wohngebäude
Baujahr laut Energieausweis
2025
Wesentliche Energieträger
LUFTWP
Gültigkeit
bis 24.07.2035
Effizienzklasse
A+
Endenergiebedarf
14,30 kWh/(m²·a)
Weitere Energiedaten
Heizungsart
Fußbodenheizung, Luft-/Wasser-Wärmepumpe
Details
Objektbeschreibung
Exklusive Zweizimmer Dachterrassen-Wohnung mit hochwertiger Ausstattung
In einem kleinen, aber feinen Fünf-Familien-Haus erwartet Sie diese lichtdurchflutete Wohnung im 1. OG, die durch ihre moderne Architektur, gute Raumaufteilung und hochwertige Ausstattung überzeugt. Auf der 21 qm großen Dachterrasse und dem 10 qm...
Ausstattung
* Sie können sofort einziehen!
* Kleine Wohnanlage mit nur 5 Einheiten
* Sonne vom späten Vormittag bis zum Abend auf Ihrer 21 qm Dachterrasse und 10 qm Westbalkon
* Wohnung mit West-Ausrichtung
* Kontrollierte Be-und Endlüftung mit Wärmerückgewinnung
* Neubau mit hochwertige...
Preisinformation
1 Carportplatz, Kaufpreis: 15.000,00 EUR
1 Stellplatz, Kaufpreis: 10.000,00 EUR
Weitere Informationen
Sonstiges
Alle Angaben ca., freibleibend und ohne Gewähr. Irrtum, Änderungen und Zwischenverkauf/Zwischenvermietung bleiben vorbehalten. Die Bekanntgabe der Objektadresse von Objektdaten geschieht unter ausdrücklichem Hinweis auf unsere Provisionsforderung im Fall des Ankaufs. Die Käuferprovision beträgt 2,38 % vom...
Anbieter der Immobilie

Online-ID: 2mr365p
Referenznummer: 10680_2Z
Finde Angebote wie dieses
Hier geht es zu unserem Impressum, den Allgemeinen Geschäftsbedingungen, den Hinweisen zum Datenschutz und nutzungsbasierter Online-Werbung.