
KENSINGTON Finest Properties Immobilien GmbH
Herr Nikita Volgin
+49 ···
Nr. anzeigenPreise & Kosten
Provision für Käufer
3,57% Inkl. Mwst
Lage
Die Immobilie befindet sich in einer ruhigen und gewachsenen Wohngegend von Ganderkesee, einer der beliebtesten Wohnorte im Umland von Bremen. Die Ortschaft steht für ein familienfreundliches Umfeld, viel Grün und eine sehr gute Kombination aus naturnahem Wohnen und funktionierender Infrastruktur.
Die Nachbarschaft ist...
Das Haus
Kategorie
Einfamilienhaus
Baujahr
1969
Bezug
Ab sofort
Energie & Heizung
Warum sehe ich diese Anzeige? – Du siehst diese Anzeige basierend auf Ihrer Navigation auf unserer Website und den Suchkriterien, die du verwendet hast.
Energieausweistyp
Bedarfsausweis
Gebäudetyp
Wohngebäude
Wesentliche Energieträger
Öl
Gültigkeit
17.12.2025 bis 17.12.2035
Effizienzklasse
G
Endenergiebedarf
234,10 kWh/(m²·a)
Weitere Energiedaten
Energieträger
Öl
Heizungsart
offener Kamin
Details
Objektbeschreibung
Zum Verkauf steht ein freistehendes Einfamilienhaus in einer ruhigen, gewachsenen Wohnlage von Ganderkesee - ein Ort, der seit Jahren zu den beliebtesten Adressen für Familien zählt, die Wert auf eine harmonische Nachbarschaft, viel Grün und ein sicheres Umfeld legen.
Das Haus befindet sich auf einem großzügigen 764 m²...
Ausstattung
- Freistehendes Einfamilienhaus
- Massivbauweise
- Baujahr: 1969
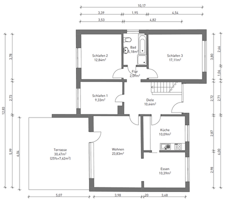
- Wohnfläche: ca. 104 m²
- Grundstücksfläche: ca. 764 m²
- Dachgeschoss mit zusätzlichen Ausbaupotenzial
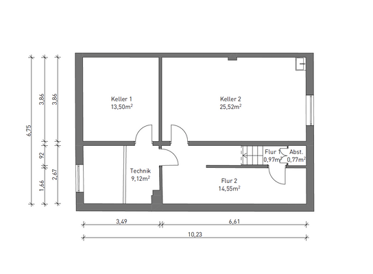
- Teilunterkellert
- Offener Essbereich mit Blick zum Wohnzimmer
- Rundbogen im Flurbereich als architektonisches Highlight
-...
Weitere Informationen
Sonstiges
Für nähere Informationen zu dieser Liegenschaft stehen Ihnen Herr Volgin unter der Mobilfunknummer 0162 38 70 678 zur Verfügung. Weitere interessante Angebote finden Sie auf unserer Firmenhomepage: www.kensington-bremen.com Alle Angaben sind ohne Gewähr und basieren ausschließlich auf Informationen, die uns von...
Anbieter der Immobilie
Online-ID: 2mr3j5s
Referenznummer: 4728662
Finde Angebote wie dieses
Hier geht es zu unserem Impressum, den Allgemeinen Geschäftsbedingungen, den Hinweisen zum Datenschutz und nutzungsbasierter Online-Werbung.