
Küsten Immobilien Lothar Peters
044 ···
Nr. anzeigenPreise & Kosten
Provision für Käufer
provisionsfrei
Lage
Die Oldeoogstraße befindet sich in einer äußerst attraktiven und ruhigen Lage im charmanten Nordseebad Dangast. Die Straße ist bekannt für ihre angenehme Atmosphäre und ihre Nähe zur Natur.
Nur wenige Gehminuten entfernt, erreichen Sie den wunderschönen Dangaster Strand, der zu entspannten Spaziergängen, Badeausflügen und...
Die Wohnung
Wohnungslage
Dachgeschoss
Wohnanlage
Energie & Heizung
Warum sehe ich diese Anzeige? – Du siehst diese Anzeige basierend auf Ihrer Navigation auf unserer Website und den Suchkriterien, die du verwendet hast.
Weitere Energiedaten
Energieträger
Gas
Details
Objektbeschreibung
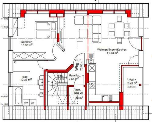
Willkommen in dieser wunderschön sanierten Eigentumswohnung im charmanten Nordseebad Dangast! Die Wohnung befindet sich im 1. Obergeschoss eines komplett sanierten Hauses und besticht durch eine hochwertige Ausstattung, liebevolle Details und eine besondere Lage mit Blick ins Grüne.
Das Herzstück bildet der großzügige...
Preisinformation
1 Stellplatz
Weitere Informationen
Sonstiges
Der Energieausweis wird noch erstellt.
Stichworte
Stellplatz vorhanden, Nutzfläche: 15,00 m², Grundstücksfläche: 1.800,00 m², Anzahl der Schlafzimmer: 1, Anzahl der Badezimmer: 1, Anzahl Balkone: 1, 1 Etagen, Distanz zum Kindergarten: 3.62, Distanz zur Grundschule: 4.38, Distanz zur nächsten...
Anbieter der Immobilie

Küsten Immobilien Lothar Peters
Online-ID: 2mr8c52
Referenznummer: 3540-25
Finde Angebote wie dieses
Hier geht es zu unserem Impressum, den Allgemeinen Geschäftsbedingungen, den Hinweisen zum Datenschutz und nutzungsbasierter Online-Werbung.