
ohne-makler.net - Immobilien selbst vermarkten
Privat von Thomas
Kontaktiere den Anbieter schriftlich, es ist keine Telefonnummer hinterlegt.
Preise & Kosten
zzgl. Nebenkosten
Warum sehe ich diese Anzeige? – Du siehst diese Anzeige basierend auf Ihrer Navigation auf unserer Website und den Suchkriterien, die du verwendet hast.
Lage
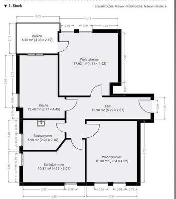
In einer der schönsten Wohngegenden der Stadt, zentrumsnah und dennoch ruhig, befinden sich diese 71qm 3-Raum-Wohnung im 1. OG und 53qm 2-Raum-Wohnung im EG.
Das Gebäude wurde 1996 errichtet und verfügt über einen Personenaufzug, der altersgerechtes Wohnen garantiert. Die angenehme Wohnqualität ist bereits beim Betreten...
Die Wohnung
Wohnungslage
1. Geschoss
Bezug
sofort
Wohnanlage
Energie & Heizung
Warum sehe ich diese Anzeige? – Du siehst diese Anzeige basierend auf Ihrer Navigation auf unserer Website und den Suchkriterien, die du verwendet hast.
Energieausweistyp
Verbrauchsausweis
Gebäudetyp
Wohngebäude
Effizienzklasse
C
Endenergieverbrauch
78,00 kWh/(m²·a)
Weitere Energiedaten
Energieträger
Gas
Heizungsart
Zentralheizung
Details
Objektbeschreibung
Guten Tag, ich suche einen Betreiber-Mieter für Rent-to-Rent Modell:
Angeboten werden 2x ETW in Magdeburg, ab 1.2.26 bzw. ab sofort
Wichtig: Sehr gut geeignet für möblierte Vermietung mit Laufzeiten ab 6 Monaten. Kurzfristige Sondervermietung von regelmäßig unter 6 Monaten ist baurechtlich nicht zugelassen. Ein...
Ausstattung
Keller, Fahrstuhl, Vollbad, Einbauküche, Laminat, Fliesen
Bemerkungen:
- Personenaufzug
- WC mit Badewanne
- Laminat
- Einbauküche (EBK)
- Balkon
Preisinformation
1 Tiefgaragenstellplatz, Miete: 45,00 EUR
Nettokaltmiete: 675,00 EUR
Weitere Informationen
Sonstiges
Heizungsart: Zentralheizung
Energieträger: Gas
Makleranfragen nicht erwünscht. Nach § 7 UWG sind unaufgeforderte Kontaktaufnahmen durch Makler ohne ausdrückliche Einwilligung des Empfängers verboten!
ohne-makler (OM) ist weder Anbieter noch Vermittler der Immobilie. OM betreibt eine Plattform...
Anbieter der Immobilie
ohne-makler.net - Immobilien selbst vermarkten
Humboldtstr. 25 A, 21509 Glinde
Privat von Thomas
Dein Ansprechpartner
Kontaktiere den Anbieter schriftlich, es ist keine Telefonnummer hinterlegt.
Online-ID: 2mr9s5z
Referenznummer: 412546
Finde Angebote wie dieses
Hier geht es zu unserem Impressum, den Allgemeinen Geschäftsbedingungen, den Hinweisen zum Datenschutz und nutzungsbasierter Online-Werbung.