

Gewerbeimmobilien Mergenthaler GmbH
Firma Gewerbeimmobilien Mergenthaler GmbH
071 ···
Nr. anzeigenPreise & Kosten
zzgl. Nebenkosten
Provision für Mieter
2,38 Netto-Monatskaltmieten inkl. MwSt.
Warum sehe ich diese Anzeige? – Du siehst diese Anzeige basierend auf Ihrer Navigation auf unserer Website und den Suchkriterien, die du verwendet hast.
Lage
Leinfelden-Echterdingen liegt 12 km südlich der Landeshauptstadt Stuttgart. Die Stadt gehört zur Region Stuttgart und zur europäischen Metropolregion Stuttgart.
Die Flughafen- und Messestadt zählt zu den begehrtesten Wirtschaftsstandorten in der Region Stuttgart.
Büro-/Praxisfläche
Kategorie
Bürogebäude
Baujahr
1995
Bezug
nach Absprache
Geschoss
Erdgeschoss
Details
Objektbeschreibung
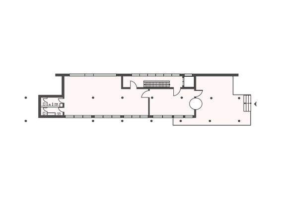
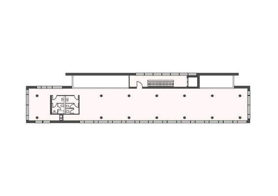
Das Bürogebäude ist als klassischer Stahlbetonskelettbau mit den Abmessungen 42,50 m x 9,15 m erstellt und hat eine durchgehende Pfosten-Riegel-Fassade mit außenliegendem Sonnenschutz. Ein Grossteil der Fassade ist vollflächig und bodentief verglast.
Im westlichen Teil des Gebäudes befindet sich das Treppenhaus mit...
Ausstattung
Das Bürogebäude mitten in Leinfelden-Echterdingen hat fünf Geschosse und die zu vermietende Gewerbeeinheit mit Bürofläche mit ca. 412 m² befindet im EG und 2. OG.
Mitvermietet werden zehn PKW-Stellplätze im Außenbereich.
Die monatliche Kaltmiete beträgt € 13,-/m² inkl. 10 Kfz-Stellplätze zzgl. € 3,-/m²...
Preisinformation
10 Stellplätze
Nettokaltmiete: 13,00 EUR
Weitere Informationen
Sonstiges
Geschäfts- und Provisionsvereinbarungen
Sämtliche Angaben basieren auf den Daten, die uns vom Eigentümer/Vermieter genannt wurden, daher können wir keine Haftung für die Richtigkeit übernehmen. Dieses Angebot ist vom Empfänger vertraulich zu behandeln, jede Weitergabe an Dritte ohne Zustimmung des Maklers...
Anbieter der Immobilie

Gewerbeimmobilien Mergenthaler GmbH
Bahnhofstraße 4, 71332 Waiblingen

Online-ID: 2mran5a
Referenznummer: G-9243
Finde Angebote wie dieses
Hier geht es zu unserem Impressum, den Allgemeinen Geschäftsbedingungen, den Hinweisen zum Datenschutz und nutzungsbasierter Online-Werbung.