
ÄRZTE & APOTHEKER IMMOBILIEN
Frau Nadine Kierspel
004 ···
Nr. anzeigenPreise & Kosten
Provision für Käufer
3,57 % inkl. MwSt.
Lage
Die Wohnung befindet sich in einem ruhigen und grünen Teil von Hamburg-Wilhelmsburg, einem Stadtteil auf der Elbinsel südlich der Hamburger Innenstadt. Die Umgebung bietet eine angenehme Mischung aus traditioneller Backsteinarchitektur, begrünten Straßen und einer stetig wachsenden städtischen Infrastruktur.
Die...
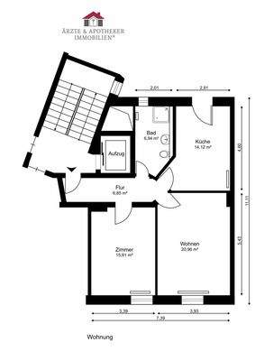
Die Wohnung
Wohnungslage
2. Geschoss
Bezug
sofort
Wohnanlage
Energie & Heizung
Warum sehe ich diese Anzeige? – Du siehst diese Anzeige basierend auf Ihrer Navigation auf unserer Website und den Suchkriterien, die du verwendet hast.
Energieausweistyp
Bedarfsausweis
Gebäudetyp
Wohngebäude
Baujahr laut Energieausweis
1988
Wesentliche Energieträger
GAS
Gültigkeit
bis 17.07.2027
Effizienzklasse
F
Endenergiebedarf
163,70 kWh/(m²·a)
Details
Objektbeschreibung
Diese charmante Altbauwohnung im zweiten Obergeschoss liegt in einem sorgfältig sanierten, rot verklinkerten Eckgebäude in einer ruhigen, baumbestandenen Seitenstraße. Die Fassade verbindet historischen Stil mit modernen Akzenten, während das Innere des Hauses mit einem geschmackvoll restaurierten Eingangsbereich begeistert...
Ausstattung
Hier finden sie die letzten freien Objekte im Projekt: https://julius-ertel.de
- Stilvoll sanierter Altbau mit klassischer Rotklinkerfassade und charakteristischen Stilelementen
- Originale, aufgearbeitete Dielenböden in allen Wohnräumen - warm, authentisch und charmant
- Hohe Decken und großzügige...
Weitere Informationen
Sonstiges
Vielen Dank für Ihr Interesse an der von uns angebotenen Immobilie.
Bitte haben Sie Verständnis dafür, dass wir unseren Auftraggebern Diskretion zugesagt haben und Sie daher um die Angabe Ihrer vollständigen Kontaktdaten inkl. Ihrer Telefonnummer bitten müssen.
Gern senden wir Ihnen anschließend ein...
Anbieter der Immobilie
ÄRZTE & APOTHEKER IMMOBILIEN
Lindenstr. 29, 21335 Lüneburg
Online-ID: 2mrcc5z
Referenznummer: 252662-9-2
Finde Angebote wie dieses
Hier geht es zu unserem Impressum, den Allgemeinen Geschäftsbedingungen, den Hinweisen zum Datenschutz und nutzungsbasierter Online-Werbung.