
BEST PLACE Immobilien GmbH & Co. KG
Ihr Best Place Vertriebsteam
004 ···
Nr. anzeigenPreise & Kosten
Provision für Käufer
3,57%
Lage
Inselliebe entsteht auf der sonnigen Südseite der Insel Eiswerder direkt neben dem Eiswerderpark. Wassersportler kommen hier auf Ihre Kosten: Ein SUP Center und mehrere Wassersportvereine sind auf der Insel aktiv. Supermärkte, Restaurants, Kitas und Schulen erreichen Sie in wenigen Minuten, ebenso wie den Krienicke Park mit...
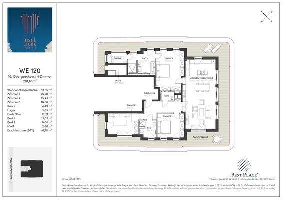
Die Wohnung
Kategorie
Penthouse
Wohnungslage
10. Geschoss
Wohnanlage
Energie & Heizung
Warum sehe ich diese Anzeige? – Du siehst diese Anzeige basierend auf Ihrer Navigation auf unserer Website und den Suchkriterien, die du verwendet hast.
Energieausweistyp
Bedarfsausweis
Gebäudetyp
Wohngebäude
Baujahr laut Energieausweis
2025
Wesentliche Energieträger
FERN
Gültigkeit
bis 19.11.1935
Endenergiebedarf
81,80 kWh/(m²·a)
Weitere Energiedaten
Energieträger
Gas
Heizungsart
Fußbodenheizung, offener Kamin
Details
Objektbeschreibung
High-End Living hoch über der Havel: Dieses großzügige Penthouse erstreckt sich über die
oberste Etage des Suntowers INSELLIEBE. Ein absolutes Unikat mit spektakulärer,
unverbaubarer Aussicht über die glitzernde Havel. Hier erwartet Sie ein repräsentatives
Domizil - lichtdurchflutet, elegant und...
Ausstattung
.Unverbaubarer 360 Grad-Panoramablick
.Penthouse über die komplette 10. Etage
.Umlaufende Dachterrasse (ca. 48 m²)
.Panorama-Sauna
.Deckenhöhe ca. 3,2 m
.Kamin
.Klimaanlage
.Badezimmer 1: Tageslicht, bodengleiche Dusche, Badewanne
.Badezimmer 2: Tageslicht, bodengleiche Dusche...
Weitere Informationen
Sonstiges
Unser Showroom in der Eiswerderstraße 10D, 13585 Berlin ist für Sie am Samstag und Sonntag von 11:00 - 14:00 Uhr geöffnet. Wir freuen uns auf Ihren Besuch!
Stichworte
Tiefgarage vorhanden, Gesamtfläche: 201,17 m², vermietbare Fläche: 201,17 m², Anzahl Terrassen: 1, Bundesland: Berlin, 10 Etagen...
Anbieter der Immobilie
Online-ID: 2mrcd5z
Referenznummer: INSEL-WE120
Finde Angebote wie dieses
Hier geht es zu unserem Impressum, den Allgemeinen Geschäftsbedingungen, den Hinweisen zum Datenschutz und nutzungsbasierter Online-Werbung.