
DSR Asset Management GmbH
Kontaktiere den Anbieter schriftlich, es ist keine Telefonnummer hinterlegt.
Preise & Kosten
Provision für Mieter
provisionsfrei
Warum sehe ich diese Anzeige? – Du siehst diese Anzeige basierend auf Ihrer Navigation auf unserer Website und den Suchkriterien, die du verwendet hast.
Büro-/Praxisfläche
Kategorie
Bürofläche
Baujahr
1962
Bezug
sofort
Details
Objektbeschreibung
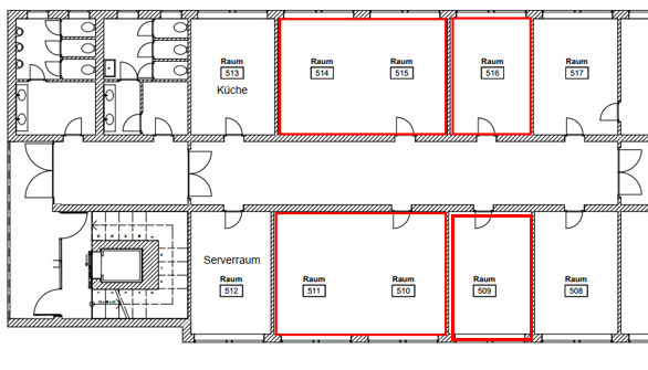
Ab sofort sind mehrere Büroräume in dem Objekt Haus der Schiffahrt, Lange Straße 1a in 18055 Rostock zu vermieten.
Die Räume liegen zusammenhängend im 5. Obergeschoss und umfassen jeweils 18,61 m² (Raum 509), 38,30 m² (Raum 510/511), 36,68 m² (Raum 514/515) und 17,29 m² (Raum 516). Die Räume können nur zusammenhängend...
Weitere Informationen
Sonstiges
Info: Anzahl Etagen: 11
Anbieter der Immobilie
DSR Asset Management GmbH
Lange Straße 1a, 18055 Rostock
Kontaktiere den Anbieter schriftlich, es ist keine Telefonnummer hinterlegt.
Online-ID: 2mrcf5n
Finde Angebote wie dieses
Hier geht es zu unserem Impressum, den Allgemeinen Geschäftsbedingungen, den Hinweisen zum Datenschutz und nutzungsbasierter Online-Werbung.