
Immobilienberatung Rennwanz
Herr Franz Vogt
+49 ···
Nr. anzeigenPreise & Kosten
Provision für Käufer
3,57% des Kaufpreises inkl. MwSt. inkl. MwSt.
Für den Nachweis und/oder die Vermittlung dieser Immobilie beträgt die Käufer- sowie Verkäuferprovision jeweils 3,57% inkl. gesetzl. MwSt.. Diese ist fällig und zahlbar mit notariellem Kaufvertrag.
Lage
Probstheida liegt an der von Leipzig nach Grimma führenden Prager Straße - S 38, ca. fünf Kilometer südöstlich vom Stadtzentrum entfernt.
Die Grenze des Ortsteils bildet im Norden die Prager Straße vom Friedhofsweg bis zum Johann-Jakob-Weber-Platz, verläuft sodann nach Osten bis zur Östlichen Rietzschke, welche dann...
Die Wohnung
Wohnungslage
Erdgeschoss
Derzeitige Nutzung
vermietet
Wohnanlage
Energie & Heizung
Warum sehe ich diese Anzeige? – Du siehst diese Anzeige basierend auf Ihrer Navigation auf unserer Website und den Suchkriterien, die du verwendet hast.
Energieausweistyp
Verbrauchsausweis
Gebäudetyp
Wohngebäude
Gültigkeit
bis 28.03.2028
Effizienzklasse
D
Endenergieverbrauch
129,00 kWh/(m²·a)
Weitere Energiedaten
Energieträger
Gas
Heizungsart
Zentralheizung
Details
Objektbeschreibung
[ ETW - Trendelenburgstraße ]
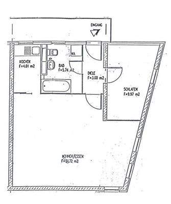
Die hier angebotene 2-Raum-Wohnung befindet sich im Erdgeschoss eines Neubau-Komplexes mit mehreren Hauseingängen in der Trendelenburgstraße in Leipzig Probstheida.
Das Haus sowie die Gemeinschaftsanlage sind top-gepflegt und werden von einer in Leipzig ansässigen Hausverwaltung...
Ausstattung
helle und großzügige 2-Raum Wohnung in ruhiger Lage mit folgender Ausstattung:
- Bad mit Dusche und Fenster
- Waschmaschinenanschluss im Bad
- offener Küchenbereich
- ebenerdiger Tiefgaragenstellplatz (+ 10.000,00 €)
Die Wohnung ist 10/2019 solide vermietet. Der Mietertrag liegt bei 300,00 €...
Preisinformation
1 Tiefgaragenstellplatz, Kaufpreis: 10.000,00 EUR
Ist-Mieteinnahmen pro Jahr: 3.600,00 EUR
Weitere Informationen
Sonstiges
Wir haben alle Angaben nach bestem Wissen eingepflegt. Bitte haben Sie jedoch dafür Verständnis, dass für alle Angaben und Preise keine Gewähr übernommen wird. Reservierungen sind unverbindlich und gelten immer nur vorbehaltlich der Zustimmung des Eigentümers. Ein Rechtsanspruch auf einen Kauf- oder Mietvertrag...
Anbieter der Immobilie
Online-ID: 2mrcj5m
Referenznummer: 225832
Finde Angebote wie dieses
Hier geht es zu unserem Impressum, den Allgemeinen Geschäftsbedingungen, den Hinweisen zum Datenschutz und nutzungsbasierter Online-Werbung.