

Winegg Makler GmbH
Herr Christoph Kral
+43 ···
Nr. anzeigenPreise & Kosten
Provision für Käufer
3% des Kaufpreises zzgl. 20% USt.
Lage
In unmittelbarer Nähe dieser Toplage des 7. Bezirks befinden sich unter anderem das Museumsquartier, der Spittelberg, die Mariahilfer Straße und das Volkstheater. Die Nahversorgung ist durch zahlreiche Geschäfte und Gastronomiebetriebe aller Art bestens gegeben. Die Anbindung an...
Die Wohnung
Wohnungslage
2. Geschoss
Wohnanlage
Energie & Heizung
Warum sehe ich diese Anzeige? – Du siehst diese Anzeige basierend auf Ihrer Navigation auf unserer Website und den Suchkriterien, die du verwendet hast.
Heizwärmebedarf (HWB)
164,64 kWh/(m²·a)
Gesamtenergieeffizienz (fGEE)
2,33
Weitere Energiedaten
Energieträger
Gas
Heizungsart
Etagenheizung
Details
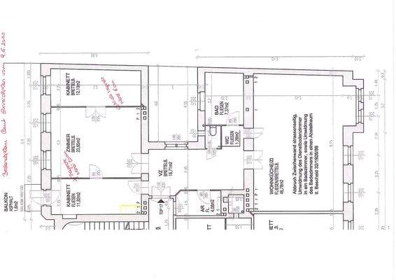
Objektbeschreibung
Bei dieser Liegenschaft handelt es sich um ein sehr schönes Jahrhundertwendehaus mit Innenhof, welches sich in der Bandgasse zwischen Burggasse und Kandlgasse - nächst Neubaugasse und Zieglergasse - befindet. Es gibt keinen Personenlift.
Der sanierungsbedürftige 4-Zimmer-Altbau mit ca...
Weitere Informationen
Stichworte
Ost-Balkon/Terrasse, Anzahl der Badezimmer: 1, Anzahl der separaten WCs: 1, Anzahl Balkone: 1, Balkon-Terrassen-Fläche: 1,60 m², Bundesland: Wien, 6 Etagen
Anbieter der Immobilie
Winegg Makler GmbH
Herrengasse 1-3 / 4. Stockwerk, 1010 WIEN

Online-ID: 2mrcu5u
Referenznummer: OBGC2025122815245194171d4ef77c6
Finde Angebote wie dieses
Günstige Immobilienfinanzierung einfach online berechnen
Persönliches Angebot berechnenWarum sehe ich diese Werbung? – Du siehst diese Werbung basierend auf Deiner Navigation auf unserer Website und der von Dir verwendeten Suchkriterien.
Diese Werbung wird bezahlt von durchblicker
Werbung melden
Hier geht es zu unserem Impressum, den Allgemeinen Geschäftsbedingungen, den Hinweisen zum Datenschutz und nutzungsbasierter Online-Werbung.