
Freiherr von Dobeneck Immobilien und Hausverwaltungs GmbH
Frau Stephanie Heine
Kontaktiere den Anbieter schriftlich, es ist keine Telefonnummer hinterlegt.
Preise & Kosten
Warum sehe ich diese Anzeige? – Du siehst diese Anzeige basierend auf Ihrer Navigation auf unserer Website und den Suchkriterien, die du verwendet hast.
Lage
Möckern befindet sich im Norden von Leipzig, der durch eine Mischung aus historischen und modernen Gebäuden geprägt ist. Durch die sehr gute Anbindung an das öffentliche Verkehrsnetz ist das Stadtzentrum schnell erreichbar. Auf Grund der Lage zum Leipziger Auwald, der Burgaue sowie zum Auensee ist der Stadtteil bei Familien...
Die Wohnung
Wohnungslage
Erdgeschoss
Bezug
sofort
Derzeitige Nutzung
frei
Wohnanlage
Energie & Heizung
Warum sehe ich diese Anzeige? – Du siehst diese Anzeige basierend auf Ihrer Navigation auf unserer Website und den Suchkriterien, die du verwendet hast.
Energieausweistyp
Verbrauchsausweis
Gebäudetyp
Wohngebäude
Gültigkeit
bis 05.02.2028
Effizienzklasse
D
Endenergieverbrauch
121,60 kWh/(m²·a)
Weitere Energiedaten
Energieträger
Gas
Heizungsart
Zentralheizung
Details
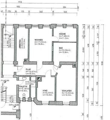
Objektbeschreibung
Zur Vermietung steht diese gemütliche 4 Zimmerwohnung in Leipzig-Möckern.
Die Einheit verfügt über ein Wohnzimmer mit Zugang zur Küche, einen Flur, ein Badezimmer mit Dusche und 3 weiteren Zimmern. Die Einheit wurde renoviert und mit neuem Laminat und neuen Zimmertüren ausgestattet.
Ausstattung
* Laminat Neu
* Bad mit Dusche
Weitere Informationen
Sonstiges
Bei Interesse schicken Sie uns einfach gleich hier eine Anfrage über das Immobilienportal, wir melden uns mit einem Terminvorschlag zur Besichtigung bei Ihnen zurück.
Sollten Sie von uns keine Einladung zum Besichtigungstermin erhalten, ist dies kein böser Wille, sondern die Anzahl an Interessenten einfach...
Anbieter der Immobilie
Freiherr von Dobeneck Immobilien und Hausverwaltungs GmbH
Wittenberger Straße 43 , 04129 Leipzig
Frau Stephanie Heine
Dein Ansprechpartner
Kontaktiere den Anbieter schriftlich, es ist keine Telefonnummer hinterlegt.
Online-ID: 2mrde57
Referenznummer: 1265 (1/1265)
Finde Angebote wie dieses
Hier geht es zu unserem Impressum, den Allgemeinen Geschäftsbedingungen, den Hinweisen zum Datenschutz und nutzungsbasierter Online-Werbung.