
WOGETRA
Vertrieb
034 ···
Nr. anzeigenPreise & Kosten
Kaution
2.015,00
Warum sehe ich diese Anzeige? – Du siehst diese Anzeige basierend auf Ihrer Navigation auf unserer Website und den Suchkriterien, die du verwendet hast.
Lage
Die Wohnanlage befindet sich in unmittelbarer Nähe zur Leipziger Innenstadt, die mit ihrem abwechslungsreichen Kulturprogramm keine Wünsche offen lässt.
Die Wohnung
Kategorie
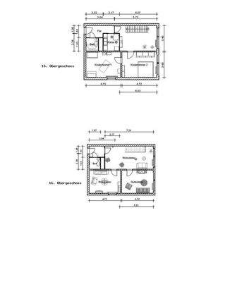
Maisonette
Wohnungslage
14. Geschoss
Bezug
01.01.2026
Wohnanlage
Energie & Heizung
Warum sehe ich diese Anzeige? – Du siehst diese Anzeige basierend auf Ihrer Navigation auf unserer Website und den Suchkriterien, die du verwendet hast.
Energieausweistyp
Verbrauchsausweis
Gebäudetyp
Wohngebäude
Wesentliche Energieträger
FERN
Gültigkeit
11.05.2018 bis 01.05.2028
Endenergieverbrauch
118,00 kWh/(m²·a)
Weitere Energiedaten
Energieträger
Fernwärme
Heizungsart
Zentralheizung
Details
Objektbeschreibung
In der Straße des 18. Oktober haben Sie eine sehr gute Anbindung an Bus und Bahn. Die Uniklinik erreichen Sie bequem zu Fuß. Auch die Deutsche Nationalbibliothek befindet sich in der näheren Umgebung. Mit Größen zwischen 25 m² und 121 m² bieten die 1- bis 6-Raum-Wohnungen Studenten, Familien und Senioren ein liebevolles...
Ausstattung
Die Wohnung wird derzeit komplett saniert. Die Bäder werden neu gefliest und erhalten eine Wanne oder Duschtasse. Der Fußboden erhält einen PVC in Holzoptik. Alle Innentüren werden erneuert. Über eine Innentreppen gelangen Sie in die nächste Etage.
Weitere Informationen
Stichworte
16 Etagen, Wohnungsnr.: 71/1/129, modernisiert
Anbieter der Immobilie
Online-ID: 2mre55b
Referenznummer: 71/1/129
Finde Angebote wie dieses
Hier geht es zu unserem Impressum, den Allgemeinen Geschäftsbedingungen, den Hinweisen zum Datenschutz und nutzungsbasierter Online-Werbung.