
ohne-makler.net - Immobilien selbst vermarkten
Privat von Sophie Wulffen
Kontaktiere den Anbieter schriftlich, es ist keine Telefonnummer hinterlegt.
Preise & Kosten
nicht in Warmmiete enthalten
Provision für Mieter
provisionsfrei
Warum sehe ich diese Anzeige? – Du siehst diese Anzeige basierend auf Ihrer Navigation auf unserer Website und den Suchkriterien, die du verwendet hast.
Lage
Zentrale und dennoch ruhige Lage in München-Schwabing. Das Rückgebäude befindet sich in einem kleinen Garten. Es sind nur wenige Gehminuten zu den U-Bahnstationen Münchner Freiheit
und Bonner Platz. Cafés, Restaurants und Einkaufsmöglichkeiten in der Nähe. Auf Wunsch kann ein kleiner Außenbereich zur Benutzung ausgewiesen...
Büro-/Praxisfläche
Kategorie
Bürofläche
Baujahr
1938
Bezug
nach Absprache
Geschoss
Erdgeschoss
Energie & Heizung
Warum sehe ich diese Anzeige? – Du siehst diese Anzeige basierend auf Ihrer Navigation auf unserer Website und den Suchkriterien, die du verwendet hast.
Weitere Energiedaten
Energieträger
Öl
Heizungsart
Zentralheizung
Details
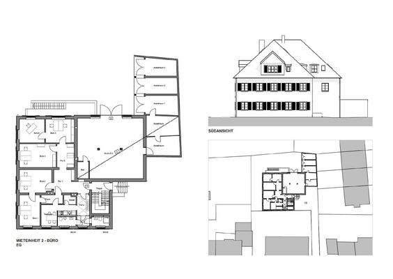
Objektbeschreibung
In ruhiger, idyllischer Hoflage einer frisch renovierten Altbauvilla (1938) zwischen Münchner Freiheit und Bonner Platz bieten wir
Ihnen ein besonders stilvolles Büro zur Miete - provisionsfrei.
Die Räume überzeugen durch hohe Decken (bis 3 m), große Fenster in drei Himmelsrichtungen und eine Kombination...
Ausstattung
Garten, Keller, Duschbad, Einbauküche, Gäste-WC, Parkett, Teppichboden, Fliesen, Sonstiges (s. Text)
Bemerkungen:
5 helle Büroräume
Teilweise Fischgrätparkett (Eiche), teilweise hochwertige Teppichfliesen (Interface)
Original Terrazzoboden im Flur
Zwei moderne Bäder, eines mit Dusche
Büroküche mit...
Preisinformation
1 Stellplatz
Nettokaltmiete: 4.200,00 EUR
Weitere Informationen
Sonstiges
Heizungsart: Zentralheizung
Energieträger: Öl
Energieausweis nicht vorhanden
Makleranfragen nicht erwünscht. Nach § 7 UWG sind unaufgeforderte Kontaktaufnahmen durch Makler ohne ausdrückliche Einwilligung des Empfängers verboten!
ohne-makler (OM) ist weder Anbieter noch Vermittler der...
Dokumente
Anbieter der Immobilie
ohne-makler.net - Immobilien selbst vermarkten
Humboldtstr. 25 A, 21509 Glinde
Privat von Sophie Wulffen
Dein Ansprechpartner
Kontaktiere den Anbieter schriftlich, es ist keine Telefonnummer hinterlegt.
Online-ID: 2mrhg53
Referenznummer: 365923
Finde Angebote wie dieses
Hier geht es zu unserem Impressum, den Allgemeinen Geschäftsbedingungen, den Hinweisen zum Datenschutz und nutzungsbasierter Online-Werbung.