

Bernhard Merz Immobilien GmbH
Herr Wolfgang Lorer
+49 ···
Nr. anzeigenPreise & Kosten
Provision für Käufer
3,57%
Lage
In zentraler Lage, nahe dem Ortskern von Frittlingen, befindet sich diese Gastgewerbeimmobilie.
Zwischen Stuttgart und dem Bodensee liegt Frittlingen am Fuß der Schwäbischen Alb auf dem kleinen Heuberg.
Die ca. 2000 Seelen-Gemeinde zeichnet eine sehr gute Infrastruktur aus, denn neben vielen Handwerkern decken...
Das Haus
Baujahr
1880
Energie & Heizung
Warum sehe ich diese Anzeige? – Du siehst diese Anzeige basierend auf Ihrer Navigation auf unserer Website und den Suchkriterien, die du verwendet hast.
Energieausweistyp
Verbrauchsausweis
Gebäudetyp
Wohngebäude
Baujahr laut Energieausweis
1880
Wesentliche Energieträger
OEL
Gültigkeit
bis 19.12.2034
Endenergieverbrauch
126,90 kWh/(m²·a)
Details
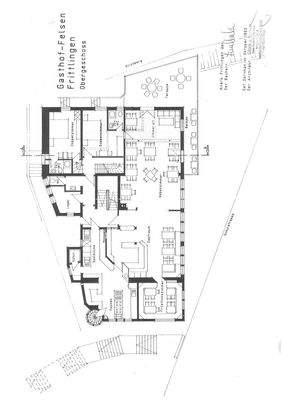
Objektbeschreibung
Seltene Gelegenheit! Zu erwerben ist eine etablierte Gastgewerbeimmobilie mit integriertem Wohnbereich und Fremdenzimmern in Frittlingen! Dieses historische Gebäude, ursprünglich ca. im Jahr 1880 erbaut und kontinuierlich renoviert und modernisiert, präsentiert sich in einem gepflegten Zustand und kann sofort weiter...
Weitere Informationen
Sonstiges
Kaufpreisfinanzierung:
Kaufpreis: € 479.000,00
Nebenkosten: ca. € 48.000,00
Eigenkapital: ca. € 150.000,00
Zins: ca. 3,2 %
Tilgung: ca. 2 %
Monatliche Belastung/Vermögensaufbau: ca. € 1320.-
Stichworte
Nutzfläche: 640,00 m², Gesamtfläche: 710,00 m², Gastronomiefläche: 215,00 m²
Anbieter der Immobilie

Online-ID: 2mrjz5y
Referenznummer: 4614
Finde Angebote wie dieses
Hier geht es zu unserem Impressum, den Allgemeinen Geschäftsbedingungen, den Hinweisen zum Datenschutz und nutzungsbasierter Online-Werbung.