

ORANGE Immobilienagentur
Herr Sebastian Kroll
004 ···
Nr. anzeigenPreise & Kosten
Kaution
3.390,00
Abschreibung/Anlage
Denkmalschutz-Afa
Warum sehe ich diese Anzeige? – Du siehst diese Anzeige basierend auf Ihrer Navigation auf unserer Website und den Suchkriterien, die du verwendet hast.
Lage
Die Immobilie befindet sich in zentraler und zugleich ruhiger Lage im beliebten Stadtteil Gostenhof, die auch als "GoHo" bekannt ist.
Direkt hinter DATEV IT Campus und dem Landgericht Nürnberg-Fürth!
GoHo steht für urbanen Lifestyle mit zahlreichen Cafés, Restaurants, von bodenständig bis zur Sterneküche, sowie...
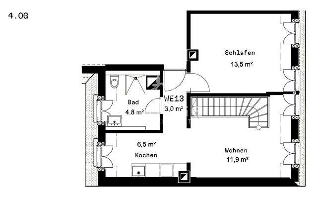
Die Wohnung
Kategorie
Maisonette
Wohnungslage
4. Geschoss
Bezug
sofort
Wohnanlage
Energie & Heizung
Warum sehe ich diese Anzeige? – Du siehst diese Anzeige basierend auf Ihrer Navigation auf unserer Website und den Suchkriterien, die du verwendet hast.
Energieausweistyp
Bedarfsausweis
Gebäudetyp
Wohngebäude
Baujahr laut Energieausweis
2022
Gültigkeit
bis 24.05.2032
Effizienzklasse
B
Endenergiebedarf
56,10 kWh/(m²·a)
Weitere Energiedaten
Energieträger
Gas
Heizungsart
Fußbodenheizung, Luft-/Wasser-Wärmepumpe
Details
Objektbeschreibung
Das charmante Eckhaus mit Sandstein-Fassade wurde 1899 im Gründerzeitviertel Gostenhof in Nürnberg gebaut und unterliegt heute dem Ensembleschutz.
2023 wurde »Das Mendel«-Haus nach denkmalschützerischen Auflagen saniert und umgebaut. Somit bleibt das äußere Erscheinungsbild gewahrt.
Dieses liebevoll sanierte...
Ausstattung
- Einbauküche
- Kernsaniert 2023
- 75qm Grundfläche
- Nutzung auch als 2er-WG geeignet
- Raumhöhe ca. 2,50 m
- 4. Obergeschoss & Dachgeschoss
- Fußbodenheizung
- Moderne Grundrisse
- Kellerabteile zu jeder Einheit
- Neue Eichenparkettböden
- Neue Holzfenster
- Bad mit Tageslicht und...
Weitere Informationen
Sonstiges
Gerne sind wir für weitere Fragen und Informationen unter Tel.: 0151- 70 14 77 20, erreichbar.
Alle Angaben stammen vom Eigentümer der Makler übernimmt hierfür keine Haftung.
Anfragen über die Immobilienportale werden nur mit vollständiger Adresse und Telefonnummer bearbeitet. Jeder ORANGE...
Anbieter der Immobilie
ORANGE Immobilienagentur
Kumpfmühler Str. 59, 93051 Regensburg

Online-ID: 2mrkq5z
Referenznummer: 142-VW-BK.13-5
Finde Angebote wie dieses
Hier geht es zu unserem Impressum, den Allgemeinen Geschäftsbedingungen, den Hinweisen zum Datenschutz und nutzungsbasierter Online-Werbung.