

AMR IMMOBILIEN
Herr Patrick Fandre
075 ···
Nr. anzeigenPreise & Kosten
Provision für Käufer
3,57% inkl. gesetzl. MwSt.
Die Provision ist verdient und fällig mit Abschluss des notariellen Kaufvertrags. AMR IMMOBILIEN hat mit dem Verkäufer einen provisionspflichtigen Maklervertrag in gleicher Höhe abgeschlossen.
Lage
Makrolage
Der Bodenseekreis als bedeutender Wirtschaftsraum mit den derzeit im Bundesvergleich niedrigsten Arbeitslosenzahlen und prognostiziertem Bevölkerungswachstum hat einen vergleichsweise stabilen Mietmarkt.
Die Stadt Friedrichshafen bildet mit Ravensburg und Weingarten "Region Bodensee - Oberschwaben" -...
Das Haus
Kategorie
Mehrfamilienhaus
Baujahr
1968
Bezug
nach Vereinbarung
Energie & Heizung
Warum sehe ich diese Anzeige? – Du siehst diese Anzeige basierend auf Ihrer Navigation auf unserer Website und den Suchkriterien, die du verwendet hast.
Energieausweistyp
Verbrauchsausweis
Gebäudetyp
Wohngebäude
Wesentliche Energieträger
Gas
Gültigkeit
07.10.2025 bis 07.10.2035
Effizienzklasse
C
Endenergieverbrauch
97,10 kWh/(m²·a)
Weitere Energiedaten
Energieträger
Gas
Heizungsart
Zentralheizung
Details
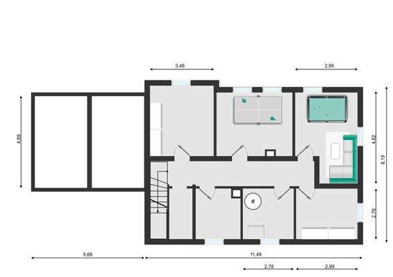
Objektbeschreibung
Zum Angebot steht ein charmantes Zweifamilienhaus im schönen Jettenhausen.
Das großzügige Grundstück mit rund 760 m² bietet viel Platz für Entfaltung, Gartenfreude und ein behagliches Wohngefühl. Das Haus ist vollunterkellert und wurde in den vergangenen Jahren bereits umfangreich modernisiert. Die Außenwände wurden...
Weitere Informationen
Sonstiges
Die in unseren Angeboten und Exposés enthaltenen Informationen dienen ausschließlich Informationszwecken und stellen keine vertragliche Zusicherung dar. Vertragsgrundlage ist ausschließlich der schriftlich abgeschlossene Kaufvertrag. AMR IMMOBILIEN übernimmt darüberhinaus keine Gewähr für die Richtigkeit und...
Anbieter der Immobilie
AMR IMMOBILIEN
Karlstraße 5, 88045 Friedrichshafen

Online-ID: 2mrmk5e
Referenznummer: E-40264
Finde Angebote wie dieses
Hier geht es zu unserem Impressum, den Allgemeinen Geschäftsbedingungen, den Hinweisen zum Datenschutz und nutzungsbasierter Online-Werbung.