
Crozilla.com
PARENTIUM Real Estate
+38 ···
Nr. anzeigenPreise & Kosten
Provision für Käufer
Bitte beachte, das Angebot kann bei Vertragsabschluss die Zahlung einer Provision beinhalten. Weitere Informationen erhältst Du vom Anbieter.
Die Immobilie
Zu diesem Angebot wurden vom Anbieter keine weiteren Daten hinterlegt. Für weitere Informationen bitte den Anbieter kontaktieren.
Nach Informationen fragenDetails
Objektbeschreibung
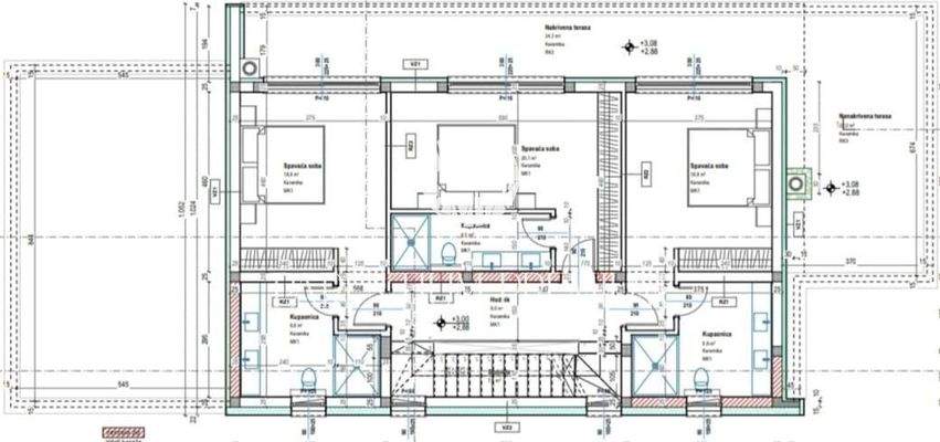
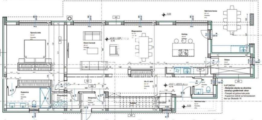
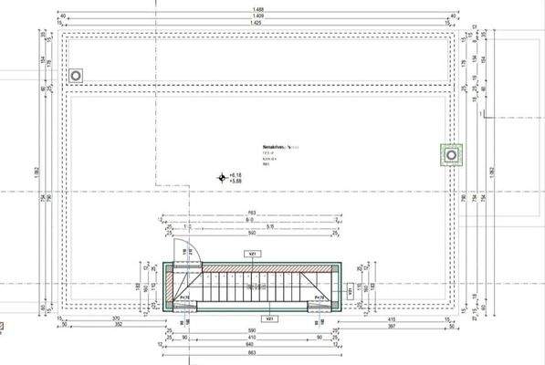
Istrien, Porec - UmgebungDiese imposante moderne Villa mit Pool von einer Gesamtfläche von bruto 307 m2 ,netto 263,6 m² und einer großen Dachterrasse von 97,1 m² befindet sich an einem Ort mit allen Annehmlichkeiten.Das Haus ist in 3 Etagen unterteilt.Im Erdgeschoss befindet sich ein offenes Wohnzimmer mit Küche und...
Weitere Informationen
Stichworte
Anzahl der Schlafzimmer: 4, Anzahl der Badezimmer: 5, 2 Etagen
Anbieter der Immobilie
Crozilla.com
Nova cesta 60, 10000 ZAGREB
Online-ID: 2mrqe5s
Referenznummer: 18697895_1
Finde Angebote wie dieses
Hier geht es zu unserem Impressum, den Allgemeinen Geschäftsbedingungen, den Hinweisen zum Datenschutz und nutzungsbasierter Online-Werbung.