

Gruttmann Immobilien GmbH
Frau Britta C. Gruttmann
030 ···
Nr. anzeigenPreise & Kosten
Provision für Käufer
Gemäß der gesetzlichen Regelung zur Teilung der Maklercourtage beträgt die Provision 3,57% des Kaufpreises inklusive 19% MwSt. jeweils in gleicher Höhe für die Verkäuferseite sowie für die Käuferseite.
Lage
Die Immobilie befindet sich in einer bevorzugten Wohngegend in Weißensee. Weißensee ist ein Berliner Stadtteil im Nordosten der Stadt und gehört zum Verwaltungsbezirk Pankow. Direkt an dem angrenzenden Szene-Bezirk Prenzlauer Berg gelegen, ist die Lage sehr zentral und dennoch umgeben von Seen und Grünanlagen...
Die Wohnung
Wohnungslage
Erdgeschoss
Derzeitige Nutzung
vermietet
Details
Objektbeschreibung
Das fünfgeschossige Wohnhaus wurde 1920 erbaut. Es handelt sich um ein Eckgebäude mit einem Seitenflügel.
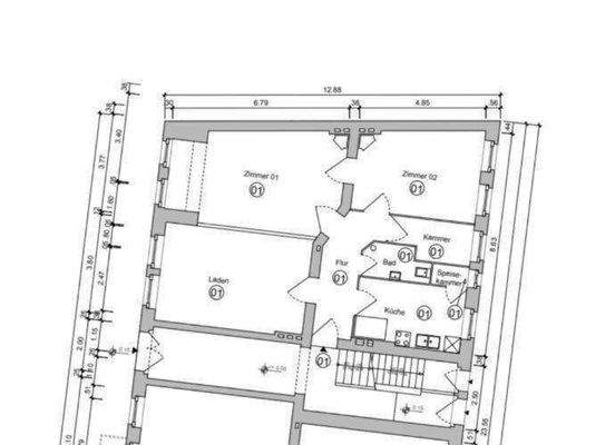
Die Wohnung befindet sich im Erdgeschoss des Vorderhauses und verfügt über eine Wohnfläche von ca. 82,78 m². Diese verteilt sich auf einen Flur, drei Zimmer nebst einer Küche, einer Abstellkammer und ein...
Weitere Informationen
Energieausweis
Der Energieausweis liegt zur Besichtigung vor!
Anbieter der Immobilie

Online-ID: 2mrr75p
Referenznummer: VK-20456_IG9_WE01_j
Finde Angebote wie dieses
Hier geht es zu unserem Impressum, den Allgemeinen Geschäftsbedingungen, den Hinweisen zum Datenschutz und nutzungsbasierter Online-Werbung.