
Sperr & Zellner Immobilien GmbH
Frau Lucia Zellner
004 ···
Nr. anzeigenPreise & Kosten
Provision für Mieter
Bitte beachte, das Angebot kann bei Vertragsabschluss die Zahlung einer Provision beinhalten. Weitere Informationen erhältst Du vom Anbieter.
Warum sehe ich diese Anzeige? – Du siehst diese Anzeige basierend auf Ihrer Navigation auf unserer Website und den Suchkriterien, die du verwendet hast.
Lage
Feldmoching ist ein Stadtteil im Nordwesten der bayerischen Landeshauptstadt München und gehört zum Stadtbezirk 24 Feldmoching-Hasenbergl. Mit seiner weitläufigen Fläche und dem dörflichen Charakter zählt Feldmoching zu den ursprünglichsten und grünsten Vierteln Münchens.
Verkehrstechnisch ist Feldmoching gut...
Die Ladenfläche
Kategorie
Laden
Baujahr
1971
Bezug
nach Vereinbarung
Energie & Heizung
Warum sehe ich diese Anzeige? – Du siehst diese Anzeige basierend auf Ihrer Navigation auf unserer Website und den Suchkriterien, die du verwendet hast.
Wärme
Strom
Energieausweistyp
Verbrauchsausweis
Gebäudetyp
Nicht-Wohngebäude
Baujahr laut Energieausweis
1971
Wesentliche Energieträger
OEL
Gültigkeit
bis 19.02.2029
Endenergieverbrauch (Wärme)
106,50 kWh/(m²·a)
Endenergieverbrauch (Strom)
45,40 kWh/(m²·a)
Details
Objektbeschreibung
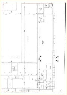
Diese großzügige Gewerbefläche bietet insgesamt ca. 801?m² Nutzfläche, verteilt auf das Erdgeschoss mit ca. 546,42?m² und das Kellergeschoss mit ca. 254,87?m². Die Einheit befindet sich derzeit in umfassender Renovierung und wird mit einer neuen Decke, einem modernen Bodenbelag sowie zeitgemäßer Beleuchtung...
Preisinformation
3 Stellplätze
Weitere Informationen
Sonstiges
Gerne übersenden wir Ihnen ein ausführliches Exposé mit zahlreichen Fotos und Außenansichten - bitte teilen Sie uns hierzu noch Ihren Namen, Ihre Anschrift und Ihre Festnetz-/Mobilnummer mit - vielen Dank!
Sperr & Zellner Immobilien GmbH
Büro Neufinsing:
Münchner Str. 4
85464...
Anbieter der Immobilie
Sperr & Zellner Immobilien GmbH
Haager Strasse 16 , 84405 Dorfen
Online-ID: 2mrru55
Referenznummer: M3761
Finde Angebote wie dieses
Hier geht es zu unserem Impressum, den Allgemeinen Geschäftsbedingungen, den Hinweisen zum Datenschutz und nutzungsbasierter Online-Werbung.