
Schwabenhaus Potsdam - Danny Hösel
Danny Hösel
+49 ···
Nr. anzeigenPreise & Kosten
Provision für Käufer
7,14 % inkl. MwSt auf den Grundstücksanteil inkl. MwSt.
Gilt nur für den Grundstücksanteil; Haus provisionsfrei. Grundstückspreis variabel, genaue Berechnung vor Maklervertragsabschluss.
Lage
Das angebotene Baugrundstück befindet sich im beliebten Ortsteil Kemnitz der Blütenstadt Werder (Havel) - einer der begehrtesten Wohnlagen im Potsdamer Umland. Geprägt von Einfamilienhäusern, Feldern und weitläufiger Natur bietet die Lage eine ideale Verbindung aus ruhigem Wohnen im Grünen und guter Anbindung an Potsdam und...
Das Haus
Kategorie
Einfamilienhaus
Energie & Heizung
Warum sehe ich diese Anzeige? – Du siehst diese Anzeige basierend auf Ihrer Navigation auf unserer Website und den Suchkriterien, die du verwendet hast.
Weitere Energiedaten
Heizungsart
Fußbodenheizung
Details
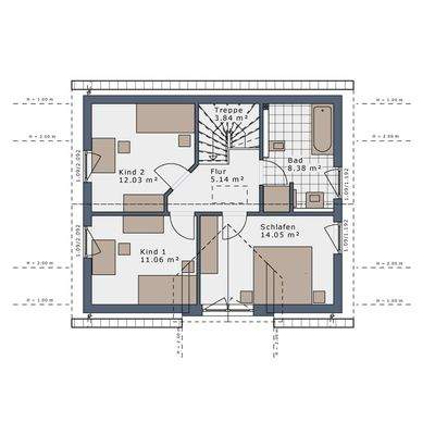
Objektbeschreibung
Willkommen in Ihrem neuen Zuhause - wo Familienleben, Geborgenheit und Nachhaltigkeit Hand in Hand gehen.
Dieses Haus ist mehr als nur vier Wände - es ist ein Ort, an dem Sie ankommen, aufblühen und gemeinsame Erinnerungen schaffen. Sorgfältig für familienorientierte Menschen gestaltet, verbindet es großzügiges Wohnen...
Ausstattung
Jedes unserer Fertighäuser wird speziell für Sie geplant und ist perfekt auf die Anforderungen und Vorgaben Ihres Bauvorhabens angepasst - Bebauungspläne, eine besondere Grundstückslage und die gewünschten Eigenleistungen werden im Detail geprüft und berücksichtigt.
Jedes Schwabenhaus verfügt standardmäßig über:
-...
Weitere Informationen
Sonstiges
Das Haus ist projektiert inkl. Grundstück. Das Grundstück wird in Kommission angeboten bzw. direkt von Dritten verkauft. Daher kann der o.g. Preis aufgrund aktueller Marktsituationen schwanken.
Die Bauabwicklung kann kurzfristig nach Grundstückserwerb begonnen werden. Bilder zeigen möglicherweise...
Anbieter der Immobilie
Schwabenhaus Potsdam - Danny Hösel
Unger Park 4, 14542 Werder (Havel)
Online-ID: 2mrs35s
Referenznummer: SH-361640-Werder (Havel)
Finde Angebote wie dieses
Hier geht es zu unserem Impressum, den Allgemeinen Geschäftsbedingungen, den Hinweisen zum Datenschutz und nutzungsbasierter Online-Werbung.