

Wohnung zum Kauf645000 €5.609 €/m²3 Zimmer • 115 m² • EG
645000 €
5.609 €/m²
3 Zimmer • 115 m² • EG
Wohnungen mit Meerblick in vorteilhafter Lage in Torremolinos
Merkmale
- Bezug: Spain Homes
- Erdgeschoss
- Personenaufzug
- voll klimatisiert
- Swimmingpool
- Kabelanschluss
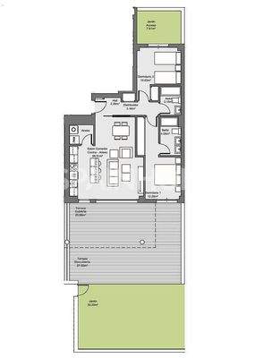
Grundrisse
Grundrisse
1 / 3
Virtueller Rundgang
Video

Bausubstanz und Energie
Möchtest du Details zum Energieverbrauch?

- Baujahr2025
Preisdetails
Kaufpreis
645000 €
5.608,70 €/m²
Provision für Käufer
Bitte beachte, das Angebot kann bei Vertragsabschluss die Zahlung einer Provision beinhalten. Weitere Informationen erhältst Du vom Anbieter.
Lage

Málaga (29620)
Der Anbieter hat die genaue Adresse nicht freigegeben
Weitere Informationen
Weitere Services
Lust auf eine Besichtigung?
Eine Frage zur Immobilie?
Über den Anbieter
C/El Montículo 8, Benalmádena, 29631 MÁLAGA
Partnerschaft

Herr Santiago de Cordoba EstepaDein Kontakt
Online-ID: 25YSMFBJMHU5
Referenznummer: AGP-0784-2-GroundFloor
Wie zufrieden bist du mit dieser Seite (nicht mit der Immobilie selbst)?
- Immobilie
- Exposé


