
Groth-Bau GmbH Bauunternehmung
Frau Maren Steffens
041 ···
Nr. anzeigenPreise & Kosten
Provision für Käufer
provisionsfrei
Abschreibung/Anlage
als Kapitalanlage geeignet
Lage
Die Umgebung dieser Wohnung begeistert sowohl Berufstätige als auch Familien, die eine exzellente Anbindung und eine umfassende Infrastruktur schätzen. Gelegen im Herzen von Buchholz, bietet diese Immobilie eine Vielzahl an Annehmlichkeiten in unmittelbarer Nähe. Der Bahnhof ist bequem zu Fuß erreichbar und ermöglicht eine...
Die Wohnung
Kategorie
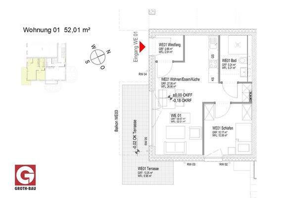
Terrassenwohnung
Wohnungslage
Dachgeschoss
Bezug
01.05.2027
Wohnanlage
Energie & Heizung
Warum sehe ich diese Anzeige? – Du siehst diese Anzeige basierend auf Ihrer Navigation auf unserer Website und den Suchkriterien, die du verwendet hast.
Energieausweistyp
Bedarfsausweis
Gebäudetyp
Wohngebäude
Baujahr laut Energieausweis
2026
Wesentliche Energieträger
Strom-Mix
Gültigkeit
01.12.2025 bis 30.11.2035
Effizienzklasse
A+
Endenergiebedarf
18,30 kWh/(m²·a)
Weitere Energiedaten
Energieträger
Elektro
Heizungsart
Fußbodenheizung, Luft-/Wasser-Wärmepumpe, Zentralheizung
Details
Objektbeschreibung
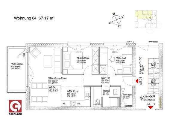
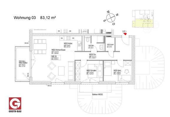
Wir bauen für Sie sechs Wohnungen in einer soliden, massiven Bauweise. Die Wohnung 01 mit direktem Zugang von außen wird barrierefrei hergestellt. Das Gebäude erhält keinen Aufzug. Die weiteren Wohnungen werden über ein gemeinsames Treppenhaus erschlossen. Die Wohnung 02 hat Schlafräume mit ausreichender Belichtung durch...
Ausstattung
Die großzügige Terrasse von über 19 m² lädt dazu ein, unvergessliche Momente im Freien zu erleben und bietet reichlich Platz zur Entspannung. Das offene Raumkonzept eröffnet Ihnen abwechslungsreiche Gestaltungsmöglichkeiten, sodass Sie Ihren individuellen Stil ganz nach Ihren Vorstellungen verwirklichen können. Zwei Räume als...
Weitere Informationen
Das Objekt wird voraussichtlich im zweiten Quartal 2027 bezugsfertig sein und bietet Ihnen die Möglichkeit, einen neuen Lebensstil zu genießen. Besuchen Sie uns gerne für ein persönliches Beratungsgespräch in unserem Büro in Buchholz. Wir freuen uns darauf, Ihre Wünsche zu besprechen und gemeinsam die perfekte Lösung für Ihre...
Dokumente
Anbieter der Immobilie
Groth-Bau GmbH Bauunternehmung
Maurerstraße 12, 21244 Buchholz in der Nordheide
Online-ID: 2mrvs5j
Referenznummer: WE05
Finde Angebote wie dieses
Hier geht es zu unserem Impressum, den Allgemeinen Geschäftsbedingungen, den Hinweisen zum Datenschutz und nutzungsbasierter Online-Werbung.