

Immobilien-Verkaufsprofi UG (haftungsbeschränkt) & Co. KG RE/MAX Donauwörth
Herr Konrad Martiny
017 ···
Nr. anzeigenPreise & Kosten
Provision für Käufer
3,57 % inkl. MwSt.
Lage
Diese Immobilie besticht durch ihre hervorragende Lage in Ingolstadt, die sowohl Ruhe als auch eine exzellente Anbindung an wichtige Einrichtungen bietet. In unmittelbarer Nähe finden Sie eine Vielzahl an Einkaufsmöglichkeiten, darunter mehrere Supermärkte, die Ihren täglichen Bedarf decken.
Für Ihre Gesundheit ist...
Das Haus
Kategorie
Mehrfamilienhaus
Baujahr
2005
Bezug
nach Vereinbarung
Energie & Heizung
Warum sehe ich diese Anzeige? – Du siehst diese Anzeige basierend auf Ihrer Navigation auf unserer Website und den Suchkriterien, die du verwendet hast.
Weitere Energiedaten
Energieträger
Gas
Details
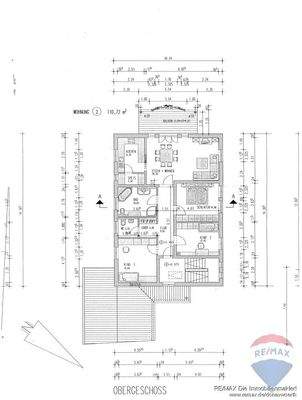
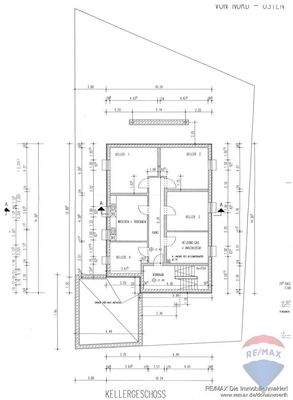
Objektbeschreibung
Dieses ansprechende Zweifamilienhaus bietet 2 abgeschlossene Wohnungen auf einer großzügigen Wohnfläche von 218 m² vielfältige Möglichkeiten für komfortables Wohnen. Das Objekt befindet sich auf einem 490 m² großen Grundstück und ist ideal für Familien, die Wert auf Raum und Privatsphäre legen.
Beim Betreten des Hauses...
Ausstattung
- Zweifamilienhaus mit einer Wohnfläche von 218m²
- Grundstücksfläche: 490m²
- Doppelgarage mit Zugang über den Hausflur
- 1 Stellplatz im Freien
- Zwei separate Wohneinheiten
- Moderne Fassade in hellem Farbton
- Großzügiger Balkon mit Glasgeländer
- Terrasse mit direktem Zugang zum Garten
-...
Preisinformation
4 Stellplätze
4 Garagenstellplätze
Weitere Informationen
Sonstiges
Es liegt ein Energieverbrauchsausweis vor.
Dieser ist gültig bis 15.10.2035.
Endenergieverbrauch beträgt 97.20 kwh/(m²*a).
Wesentlicher Energieträger der Heizung ist Gas.
Das Baujahr des Objekts lt. Energieausweis ist 2005.
Die Energieeffizienzklasse ist C.
Allgemeine...
Anbieter der Immobilie
Immobilien-Verkaufsprofi UG (haftungsbeschränkt) & Co. KG RE/MAX Donauwörth
Reichsstraße 3, 86609 Donauwörth

Online-ID: 2mrwa5z
Referenznummer: 1083-19-MY
Finde Angebote wie dieses
Hier geht es zu unserem Impressum, den Allgemeinen Geschäftsbedingungen, den Hinweisen zum Datenschutz und nutzungsbasierter Online-Werbung.