Hansy GmbH

Herr Alexander Kalinowski

Sanierungsbedürftiges Haus mit ausbaufähigem Rohdachboden in Bad Vöslau!

€ 240.000
Kaufpreis
87,71 m²
Wohnfläche ca.
3
Zimmer
270 m²
Grundstücksfl. ca.
Finanzierung berechnen mit durchblicker

Der Anbieter dieses Objekts hat gegenüber der AVIV Germany GmbH als Betreiber dieses Online-Marktplatzes erklärt, nicht als Unternehmer im Sinne des § 1 KSchG zu handeln. Die im Verbraucherschutzrecht der Union verankerten Verbraucherrechte (insbesondere Informationspflichten und Rücktritts- bzw. Widerrufsrechte) finden auf den Vertrag zwischen dem Anbieter des Objekts und Ihnen (dem Interessenten) keine Anwendung.

Gewerblicher Anbieter

Der Anbieter dieses Objekts hat gegenüber der AVIV Germany GmbH als Betreiber dieses Online-Marktplatzes erklärt, als Unternehmer im Sinne des § 1 KSchG zu handeln.

AdresseStraße nicht freigegeben
2540 Bad Vöslau 
Auf Karte ansehen

Preise & Kosten

Kaufpreis € 240.000 Preis/m² € 1.666,67

Provision für Käufer

3% des Kaufpreises zzgl. 20% USt.

Lage

Dieses charmante Apartmenthaus bei 2540 Bad Vöslau besticht durch seine ideale Lage im Südosten. In unmittelbarer Nähe finden Sie alles, was das Herz begehrt: Ärzte, Schulen, Kindergärten sowie Bäckereien und Banken sind bequem erreichbar. Ein Geldautomat und die Post sind nur einen kurzen Fußweg entfernt. Die gute Anbindung...

Mehr anzeigen

Das Haus

Kategorie

Reihenendhaus

Baujahr

1920

Bezug

sofort

  • Zustand: Altbau (bis 1945), renovierungsbedürftig / sanierungsbedürftig
  • 2 Stellplätze
  • Bad mit Wanne und Dusche
  • Einbauküche
  • Böden: Fliesenboden, Parkett
  • Anschlüsse: Kabelanschluss
  • barrierefrei

Energie & Heizung

Heizwärmebedarf (HWB)

G

327,00 kWh/(m²·a)

Gesamtenergieeffizienz (fGEE)

F

3,32

Weitere Energiedaten

Energieträger

Gas

Heizungsart

Etagenheizung

Details

Objektbeschreibung

Charmantes Eckhaus mit großem Ausbaupotenzial - Rohdachboden & vielseitigem Untergeschoss

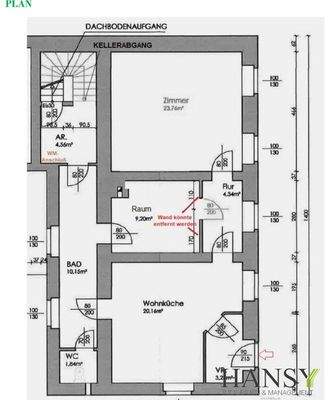
Dieses Haus aus dem Jahr 1920 befindet sich auf einem Eckgrundstück und bietet viel Raum für individuelle Gestaltungsideen. Mit Erdgeschoss, Untergeschoss sowie einem ca. 77 m² großen, ausbaufähigen Rohdachboden eröffnet die...

Mehr anzeigen

Preisinformation

2 Stellplätze

Weitere Informationen

Stichworte
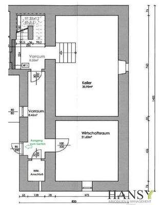
Stellplatz vorhanden, Süd-Ost-Balkon/Terrasse, Nutzfläche: 144,00 m², Anzahl der Badezimmer: 1, Anzahl der separaten WCs: 2, Gartenfläche: 40,00 m², Kellerfläche: 57,57 m², Bundesland: Niederösterreich, 2 Etagen

Anbieter der Immobilie

Partner

Hansy GmbH

Sauerhofstr.10, 2500 BADEN

user

Herr Alexander Kalinowski

Dein Ansprechpartner

Anbieter-Website Anbieter-Profil Anbieter-Impressum

Online-ID: 2mrx95z

Referenznummer: OBGC20260108130239953d61f7900ee

Finde Angebote wie dieses

imageimageimage

Günstige Immobilienfinanzierung einfach online berechnen

Persönliches Angebot berechnen

Hier geht es zu unserem Impressum, den Allgemeinen Geschäftsbedingungen, den Hinweisen zum Datenschutz und nutzungsbasierter Online-Werbung.