

Rothenschloss GmbH
Frau Kerstin Wölleke
053 ···
Nr. anzeigenPreise & Kosten
Provision für Käufer
Keine Provision
Abschreibung/Anlage
Denkmalschutz-Afa
Lage
Das Areal liegt in einer der begehrtesten Wohn- und Freizeitlagen von Bad Harzburg, einem bekannten Kur- und Tourismusort am Harzrand. Die Immobilie profitiert von der direkten Nähe zu Infrastruktur, Natur und Freizeitangeboten
- Internats-Gymnasium direkt um die Ecke
- Golfplatz nur ca. 550 m entfernt - fußläufig...
Das Renditeobjekt
Baujahr
1977
Geschosse
4 Geschosse
Energie & Heizung
Warum sehe ich diese Anzeige? – Du siehst diese Anzeige basierend auf Ihrer Navigation auf unserer Website und den Suchkriterien, die du verwendet hast.
Weitere Energiedaten
Energieträger
Gas
Heizungsart
offener Kamin, Zentralheizung
Details
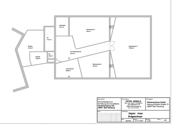
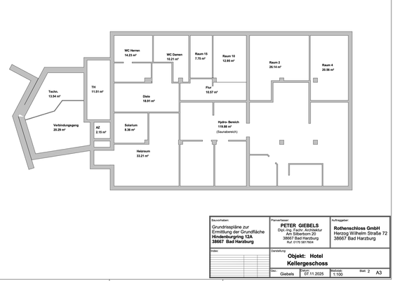
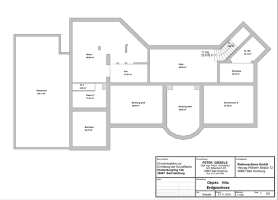
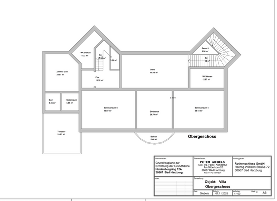
Objektbeschreibung
Seltenes Immobilien-Schnäppchen in Bad Harzburg - 4-Objekte-Areal mit massivem Value-Add-Potenzial.
Zum Verkauf steht ein außergewöhnliches Immobilienpaket im begehrten Hindenburgring in Bad Harzburg ohne Maklercourtage.
Das Ensemble umfasst über 3.000 m² vermietbare Bestandsfläche sowie ein attraktives...
Ausstattung
Egal, ob Sie das Objekt als Bestand weiterentwickeln, aufteilen, Neubau realisieren oder Betreiberkonzepte nutzen - Sie profitieren von einem enormen Wertsteigerungspotenzial.
Preisinformation
47 Stellplätze
Weitere Informationen
Sonstiges
Rufen Sie uns einfach direkt an - wir koordinieren kurzfristig einen Besichtigungstermin 05322 9044777
Wir freuen uns darauf, Ihnen die Immobilie persönlich zu zeigen.
Energiepass
Energieausweis wird bei Besichtigung vorgelegt.
Stichworte
vermietbare Fläche: 3.650,73 m², Anzahl Balkone: 1...
Anbieter der Immobilie
Rothenschloss GmbH
Herzog-Wilhelm-Straße 72, 38667 Bad Harzburg

Online-ID: 2mrzb5l
Referenznummer: 4507119
Finde Angebote wie dieses
Hier geht es zu unserem Impressum, den Allgemeinen Geschäftsbedingungen, den Hinweisen zum Datenschutz und nutzungsbasierter Online-Werbung.