

Norbert Schaller Immobilien
Herr Norbert Schaller
091 ···
Nr. anzeigenPreise & Kosten
Provision für Käufer
3,57 % (inkl. Umsatzsteuer), berechnet vom beurkundeten Kaufpreis
Lage
Das Objekt befindet sich in einem gepflegten Wohngebiet. Sehr gute Anbindung an das öffentliche Verkehrsnetz. Schule und Kindergarten sind bequem erreichbar. Alle Einkaufsmöglichkeiten befinden sich in unmittelbarer Nähe. Schnelle Anbindung nach Nürnberg, Fürth und Zirndorf.
Die Wohnung
Kategorie
Penthouse
Wohnungslage
2. Geschoss
Bezug
* Frei
Derzeitige Nutzung
frei
Wohnanlage
Energie & Heizung
Warum sehe ich diese Anzeige? – Du siehst diese Anzeige basierend auf Ihrer Navigation auf unserer Website und den Suchkriterien, die du verwendet hast.
Energieausweistyp
Bedarfsausweis
Gebäudetyp
Wohngebäude
Wesentliche Energieträger
Gas
Gültigkeit
bis 15.09.2028
Effizienzklasse
A
Endenergiebedarf
30,00 kWh/(m²·a)
Weitere Energiedaten
Energieträger
Gas
Heizungsart
Fußbodenheizung, Zentralheizung
Details
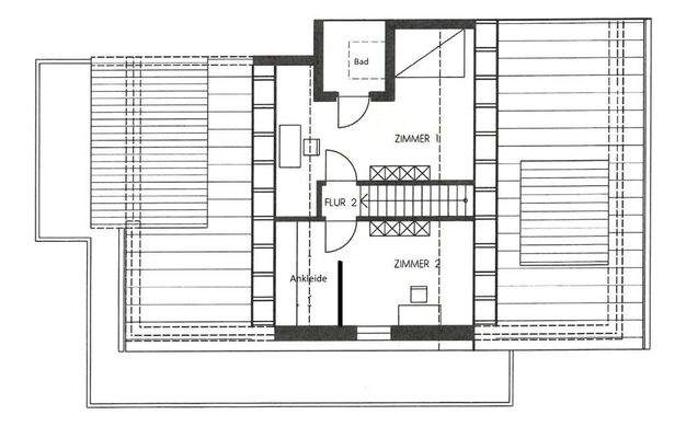
Objektbeschreibung
* Sonnige und lichtdurchflutete Penthousewohnung auf zwei Ebenen mit traumhaftem Weitblick
* Großzügige Dachterrasse mit unverbaubarem Blick über den Wiesengrund
* Zwei Elektrische Markisen, Außen-Wasseranschluss und Smart Hue Lampen auf der Terrasse
* Weiße Kunststoffisolierglasfenster mit elektrischen Außenrollos...
Weitere Informationen
Etage
* 2. OG mit Lift
Wohngeld
* Ca. EUR 496,- monatlich inkl. Heiz.
Grundsteuer
* Ca. EUR 44,- vierteljährlich
Stellplatz
* Ein TG-Stellplatz zzgl. EUR 25.000,-; Optional zweiter TG-Stellplatz möglich
Hinweis
Für unsere Nachweis-/Vermittlungstätigkeit ist vom Käufer bei Abschluss...
Anbieter der Immobilie

Online-ID: 2mrzy5n
Referenznummer: A3396
Finde Angebote wie dieses
Hier geht es zu unserem Impressum, den Allgemeinen Geschäftsbedingungen, den Hinweisen zum Datenschutz und nutzungsbasierter Online-Werbung.