
McMakler GmbH
Ihr McMakler Team
080 ···
Nr. anzeigenPreise & Kosten
Provision für Käufer
Die Provision i.H.v. 3,57 % inkl. MwSt. ist mit Kaufvertragsbeurkundung fällig, sofern der Verkaufspreis über 83.000,00 € liegt.
Liegt der Verkaufspreis dagegen bei/unter 83. Weitere Informationen siehe Provisionshinweis.
Lage
In Berlin-Friedrichshain gelegen überzeugt dieses Wohnungsangebot durch seine sehr zentrale und dennoch ruhige Lage.
Die Anbindung an den ÖPNV ist exzellent: In unmittelbarer Nähe befindet sich eine Tramhaltestelle und eine Bushaltestelle, die nächste U-Bahn Station ist in ca. 12 Minuten fußläufig erreichbar. Der...
Das Renditeobjekt
Baujahr
2023
Bezug
ab sofort
Geschosse
2 Geschosse
Energie & Heizung
Warum sehe ich diese Anzeige? – Du siehst diese Anzeige basierend auf Ihrer Navigation auf unserer Website und den Suchkriterien, die du verwendet hast.
Energieausweistyp
Bedarfsausweis
Gebäudetyp
Wohngebäude
Baujahr laut Energieausweis
2023
Wesentliche Energieträger
Fernwärme
Effizienzklasse
B
Endenergiebedarf
58,00 kWh/(m²·a)
Weitere Energiedaten
Energieträger
Fernwärme
Heizungsart
Zentralheizung
Details
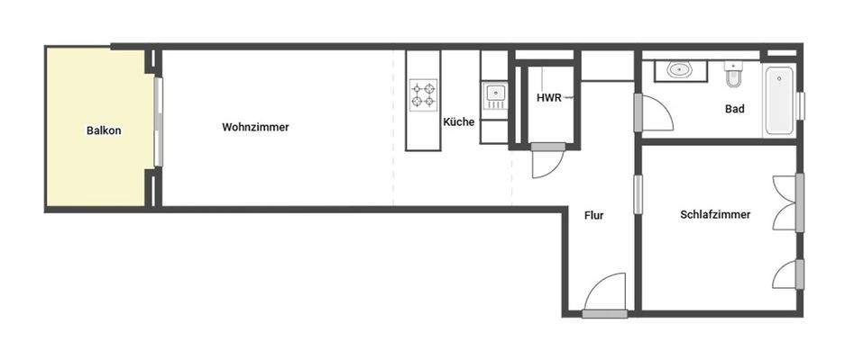
Objektbeschreibung
Objektnr: 1068968
Zum Verkauf steht eine moderne 2-Zimmer Wohnung im 2. Obergeschoss eines gepflegten Neubaus aus dem Jahr 2023, welche Sie bequem über einen Aufzug erreichen.
Mit einer Wohnfläche von ca. 60,18 qm überzeugt dieses bezugsfreie Wohnungsangebot durch die durchdachte Raumaufteilung sowie hochwertige...
Ausstattung
+ Fußbodenheizung; Hochwertige Einbauküche und weitere Einrichtungsgegenstände
+ Balkon
+ Tiefgaragenstellplatz (Sondereigentum)
+ Kellerabteil
+ Komfortabler Personenaufzug, barrierearmer Zugang
Weitere Informationen
Provisionshinweis
Die Provision i.H.v. 3,57 % inkl. MwSt. ist mit Kaufvertragsbeurkundung fällig, sofern der Verkaufspreis über 83.000,00 € liegt.
Liegt der Verkaufspreis dagegen bei/unter 83.000,00 €, ist die fest vereinbarte Mindestprovision i.H.v. mind. 5.950,00 € inkl. MwSt. mit Kaufvertragsbeurkundung fällig...
Anbieter der Immobilie
McMakler GmbH
Am Postbahnhof 17, 10243 Berlin
Online-ID: 2ms955f
Referenznummer: c62b1b62d6
Finde Angebote wie dieses
Hier geht es zu unserem Impressum, den Allgemeinen Geschäftsbedingungen, den Hinweisen zum Datenschutz und nutzungsbasierter Online-Werbung.