

ImmoKEY GmbH
Frau Viktoria Palunite
+49 ···
Nr. anzeigenDieses Angebot ist Teil des Neubauprojekts
MAISON ROSE - 39 Wohnungen - Neubau. Neues Dachgeschoss. Sanierter Altbau.
Preise & Kosten
Provision für Käufer
provisionsfrei
Lage
Im südlichen Pankow entsteht mit MAISON ROSE ein Zuhause für Menschen, die Ruhe, Natur und urbanes Leben verbinden möchten. Der grüne, familienfreundliche Bezirk zählt zu den begehrtesten Wohnlagen Berlins - geprägt von Altbaucharme, gewachsenen Nachbarschaften und einem entspannten Lebensgefühl.
Die ruhige...
Die Wohnung
Wohnungslage
4. Geschoss (Dachgeschoss)
Bezug
Q1/2026
Wohnanlage
Das Neubauprojekt
Energie & Heizung
Warum sehe ich diese Anzeige? – Du siehst diese Anzeige basierend auf Ihrer Navigation auf unserer Website und den Suchkriterien, die du verwendet hast.
Energieausweistyp
Bedarfsausweis
Gebäudetyp
Wohngebäude
Wesentliche Energieträger
Fernwärme
Gültigkeit
13.05.2025 bis 12.05.2035
Effizienzklasse
A
Endenergiebedarf
47,00 kWh/(m²·a)
Weitere Energiedaten
Energieträger
Fernwärme
Details
Objektbeschreibung
Noch vor dem offiziellen Verkaufsstart bietet sich Ihnen die Chance auf dieses attraktive Objekt - seien Sie einer der Ersten. Nutzen Sie die besondere Gelegenheit, das Projekt bereits vor dem offiziellen Verkaufsstart kennenzulernen - und seien Sie unter den Ersten, die sich eine Einheit sichern können.
Willkommen im...
Ausstattung
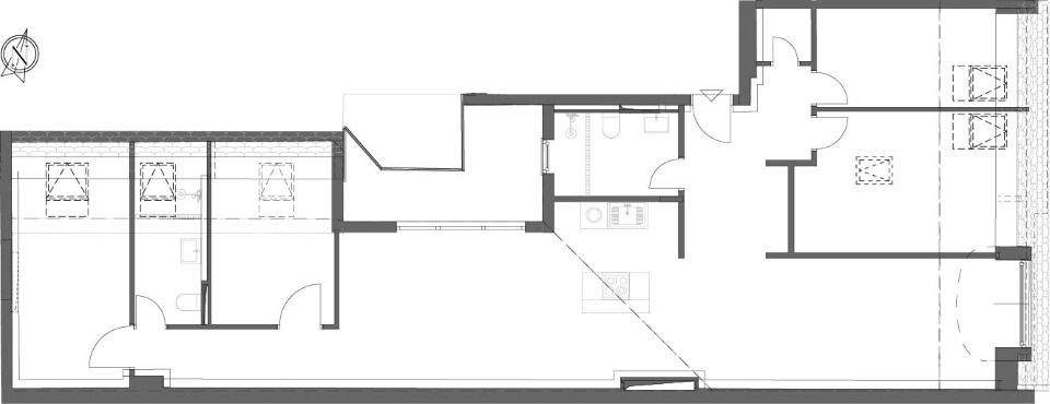
Wohnung Nr. 14 "Oh Happy Day"
- Großzügiger Wohn- und Essbereich
- 4 Schlafzimmer + 2 Bäder
- Erstbezug - moderner Wohnkomfort über den Dächern der Stadt.
- herrlich hell mit Oberlichtern
- Terrasse mit WPC-Dielenbelag - lädt zum Entspannen im Freien ein und erweitert den Wohnraum ins Grüne.
- Edler...
Weitere Informationen
Sonstiges
Die Immobilie wird provisionsfrei für den Käufer angeboten und stammt aus dem Bestand eines verbundenen Unternehmens. Bitte beachten Sie, dass Visualisierungen und Grundrisse unverbindlich sind und lediglich der Veranschaulichung dienen.
Weitere Objekte: Webseite -...
Dokumente
Anbieter der Immobilie

Online-ID: 2ms9u5j
Referenznummer: 13187ME7-WE14
Finde Angebote wie dieses
Hier geht es zu unserem Impressum, den Allgemeinen Geschäftsbedingungen, den Hinweisen zum Datenschutz und nutzungsbasierter Online-Werbung.