BESTREAL Immobilienconsulting GmbH

Herr Stephan Huemer

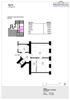
PROVISIONSFREI Neu sanierte 60 m² Altbau-Eigentumswohnung

€ 379.000
Kaufpreis
60 m²
Wohnfläche ca.
2
Zimmer
Finanzierung berechnen mit durchblicker

Der Anbieter dieses Objekts hat gegenüber der AVIV Germany GmbH als Betreiber dieses Online-Marktplatzes erklärt, nicht als Unternehmer im Sinne des § 1 KSchG zu handeln. Die im Verbraucherschutzrecht der Union verankerten Verbraucherrechte (insbesondere Informationspflichten und Rücktritts- bzw. Widerrufsrechte) finden auf den Vertrag zwischen dem Anbieter des Objekts und Ihnen (dem Interessenten) keine Anwendung.

Gewerblicher Anbieter

Der Anbieter dieses Objekts hat gegenüber der AVIV Germany GmbH als Betreiber dieses Online-Marktplatzes erklärt, als Unternehmer im Sinne des § 1 KSchG zu handeln.

AdresseStraße nicht freigegeben
1050 Wien 
(Margareten)
Auf Karte ansehen

Preise & Kosten

Kaufpreis € 379.000 Preis/m² € 6.316,67

Provision für Käufer

Bitte beachte, das Angebot kann bei Vertragsabschluss die Zahlung einer Provision beinhalten. Weitere Informationen erhältst Du vom Anbieter.

Lage

1050 Wien Fendigasse, verkehrsberuhigte Einbahnstrasse

Die Wohnung

Wohnungslage

1. Geschoss

Bezug

nach Vereinbarung

  • Bad mit Fenster und Dusche, Gäste-WC
  • Garten
  • WG-geeignet
  • Böden: Fliesenboden, Parkett
  • Zustand: renoviert / saniert
  • Weitere Räume: Abstellraum
  • Anschlüsse: Kabelanschluss

Wohnanlage

  • Baujahr: 1900
  • Zustand: Altbau (bis 1945)
  • Personenaufzug

Energie & Heizung

Heizwärmebedarf (HWB)

C

96,85 kWh/(m²·a)

Weitere Energiedaten

Energieträger

Elektro

Heizungsart

Fußbodenheizung

Details

Objektbeschreibung

PROVISIONSFREI

In der Fendigasse, 1050 Wien, steht eine neu sanierte Altbau-Eigentumswohnung zum Verkauf. 

Die Wohnung befindet sich im 1. Lift-Stock.

Die Wohnfläche beträgt ca. 60 m² Wohnfläche und hat eine Raumhöhe von ca. 3.2 m.

Die Wohnung wurde im Sommer generalsaniert und...

Mehr anzeigen

Weitere Informationen

Stichworte
Energieversorgung mit alternativen Energien, Ergänzendes dezentrales Warmwasser, Fahrradraum, Nutzfläche: 60,00 m², Anzahl der Badezimmer: 1, Anzahl der separaten WCs: 1, Kellerfläche: 3,00 m², Bundesland: Wien, 6 Etagen, modernisiert: 2025

Sonstiges: Kabelkanäle

Anbieter der Immobilie

Partner

BESTREAL Immobilienconsulting GmbH

Maderstraße 1/11, 1040 Wien

user

Herr Stephan Huemer

Dein Ansprechpartner

Anbieter-Profil Anbieter-Impressum

Online-ID: 2msaf5w

Referenznummer: OBGC202601021200554312dac8f26f0

Finde Angebote wie dieses

imageimageimage

Günstige Immobilienfinanzierung einfach online berechnen

Persönliches Angebot berechnen

Hier geht es zu unserem Impressum, den Allgemeinen Geschäftsbedingungen, den Hinweisen zum Datenschutz und nutzungsbasierter Online-Werbung.