
MOSS Immobilien GmbH
Herr Patrick Mazurek
015 ···
Nr. anzeigenPreise & Kosten
Provision für Käufer
3,57
Die angegebene Käuferprovision (inkl. MwSt.) ist verdient und fällig mit Beurkundung des notariellen Kaufvertrages.
Lage
Das Haus liegt im malerischen Simonswald im Elztal, umgeben von Wäldern, Wiesen und einem idyllischen Bachlauf direkt hinter dem Haus.
Die ruhige und naturnahe Umgebung bietet Erholung pur - ideal für Familien, Naturliebhaber und Ruhesuchende.
Trotz der idyllischen Lage ist die Verkehrsanbindung hervorragend: Die Stadt...
Das Haus
Kategorie
Einfamilienhaus
Baujahr
1985
Bezug
01.09.2026
Energie & Heizung
Warum sehe ich diese Anzeige? – Du siehst diese Anzeige basierend auf Ihrer Navigation auf unserer Website und den Suchkriterien, die du verwendet hast.
Energieausweistyp
Verbrauchsausweis
Gebäudetyp
Wohngebäude
Wesentliche Energieträger
Strom
Effizienzklasse
B
Endenergieverbrauch
64,00 kWh/(m²·a)
Weitere Energiedaten
Energieträger
Elektro
Heizungsart
Ofen
Details
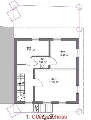
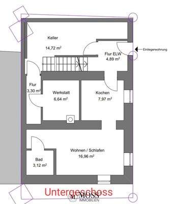
Objektbeschreibung
Diese liebevoll renovierte Einfamilienhaus in idyllischer Lage von Simonswald bietet auf rund 5 Zimmern ein behagliches Zuhause mit viel Raum für Familie, Hobby und Naturgenuss. Das Haus überzeugt durch seinen charmanten Charakter, eine durchdachte Raumaufteilung, der Größe sowie zahlreiche moderne Renovierungen in den...
Preisinformation
4 Stellplätze
Weitere Informationen
Sonstiges
Die angegebene Käuferprovision (inkl. MwSt.) ist verdient und fällig mit Beurkundung des notariellen Kaufvertrages.
MOSS Webseite - https://mossimmobilien.de
Expose Link für Portale - https://mossimmobilien.de/immobilie/4634927
Stichworte
Stellplatz vorhanden, Nutzfläche: 24,00 m², Anzahl...
Dokumente
Anbieter der Immobilie
MOSS Immobilien GmbH
Tullastraße 89, 79108 Freiburg im Breisgau
Online-ID: 2msah5h
Referenznummer: MOSS-2937
Finde Angebote wie dieses
Hier geht es zu unserem Impressum, den Allgemeinen Geschäftsbedingungen, den Hinweisen zum Datenschutz und nutzungsbasierter Online-Werbung.