

Klaus Meyer Immobilien
Herr Klaus Meyer
040 ···
Nr. anzeigenPreise & Kosten
Provision für Mieter
provisionsfrei
Warum sehe ich diese Anzeige? – Du siehst diese Anzeige basierend auf Ihrer Navigation auf unserer Website und den Suchkriterien, die du verwendet hast.
Lage
UNESCO-Weltkulturerbe!!!
Sehr zentrale ruhige City Lage im Hamburger Kontorhausviertel Der Hauptbahnhof ist fußläufig in 5 Gehminuten erreichbar.
Hier wird eine neuer BID, (Business Improvement District)
Bushaltestellen befinden sich in unmittelbarem Umfeld. Die BAB erreichen Sie mit dem Auto in wenigen...
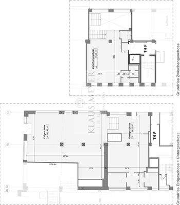
Die Ladenfläche
Kategorie
Laden
Bezug
nach Vereinbarung
Erdgeschoss
Energie & Heizung
Warum sehe ich diese Anzeige? – Du siehst diese Anzeige basierend auf Ihrer Navigation auf unserer Website und den Suchkriterien, die du verwendet hast.
Energieausweis: für diesen Gebäudetyp nicht notwendig
Weitere Energiedaten
Heizungsart
Zentralheizung
Details
Objektbeschreibung
Der sehr repräsentative Altbau wurde top saniert und bietet modernsten Standard.
Historische Stilelemente wie z.B. der Paternoster und die Gestaltung der Treppenhäuser wurde aufwändig saniert.
Das Bürohaus wurde von 1927 bis 1943 in drei Bauabschnitten von Hans und Oskar Gerson und Fritz Höger erbaut.
...
Weitere Informationen
Sonstiges
Die Provisionsfreiheit dieser Vermietung setzt einen Mietvertragsabschluss mit einer Mindest-Vertragslaufzeit von 5 Jahren voraus.
Für den Fall der kurzfristigeren Vertragslaufzeit wird dem Mieter eine Courtage in Höhe von 3,57 Brutto-Monatsmieten inkl. 19% Umsatzsteuer berechnet.
Alle Preise...
Anbieter der Immobilie
Klaus Meyer Immobilien
Marmstorfer Weg 52, 21077 Hamburg

Online-ID: 2msb25x
Referenznummer: 21392
Finde Angebote wie dieses
Hier geht es zu unserem Impressum, den Allgemeinen Geschäftsbedingungen, den Hinweisen zum Datenschutz und nutzungsbasierter Online-Werbung.