
Immobilienberatung Behrendt
Herr Tobias Behrendt
004 ···
Nr. anzeigenPreise & Kosten
Provision für Käufer
provisionsfrei
Lage
Willkommen in Aschersleben - hier treffen urbaner Komfort und naturnahe Lebensqualität perfekt aufeinander.
Die Immobilie besticht durch ihre ruhige Lage im Grünen, nur etwa 800 Meter vom lebendigen Stadtzentrum entfernt. Einkaufsmöglichkeiten, Cafés und vielfältige Freizeitangebote sind in wenigen Minuten erreichbar -...
Das Haus
Kategorie
Einfamilienhaus
Bezug
sofort
Energie & Heizung
Warum sehe ich diese Anzeige? – Du siehst diese Anzeige basierend auf Ihrer Navigation auf unserer Website und den Suchkriterien, die du verwendet hast.
Weitere Energiedaten
Heizungsart
Fußbodenheizung, Luft-/Wasser-Wärmepumpe
Details
Objektbeschreibung
Ein Zuhause für Ihre Familie - mit ScanHaus sicher, schnell und sorgenfrei gebaut
Für viele junge Familien ist der Bau eines Einfamilienhauses mehr als ein Bauprojekt - es ist der Wunsch nach einem Zuhause, das Raum für die Kinder, einen Garten und Stabilität für die Zukunft bietet. Doch gerade, wenn es das erste Eigenheim...
Ausstattung
Mit Zukunft: Unser Mehrgenerationen-Haus
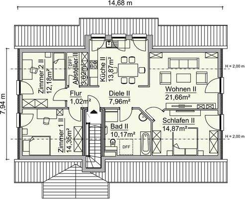
Das SH 232 EW mit seinem Varianten A und B bietet Ihnen ausreichend Platz für zwei vollwertige Wohnungen unter einem Dach - jeweils unterschiedlich angeordnet. In Variante A teilt sich die Gesamtwohnfläche von 234 m² auf Wohnung I mit 135 m² im Erdgeschoss und Wohnung II mit...
Weitere Informationen
Sonstiges
Ihr Ansprechpartner:
Tobias Behrendt
Selbstständiger Handelsvertreter nach § 84 Abs. 1 HGB für ScanHaus Marlow GmbH
ScanHaus Marlow GmbH, Möritzscher Straße 22, 04435 Schkeuditz
Tel.: 0151 11 66 54 31
Mail: behrendt@scanhaus.de
Sonstiges:
ScanHaus Marlow ist nicht der Eigentümer des im...
Anbieter der Immobilie
Immobilienberatung Behrendt
Gohliser Straße 11, 04105 Leipzig
Online-ID: 2msbt5r
Referenznummer: 128_15.1_SH232EW_V.A
Finde Angebote wie dieses
Hier geht es zu unserem Impressum, den Allgemeinen Geschäftsbedingungen, den Hinweisen zum Datenschutz und nutzungsbasierter Online-Werbung.