
Der Wohnungsschlüssel
Herr Frank Riedel
037 ···
Nr. anzeigenPreise & Kosten
Kaution
700,00
Warum sehe ich diese Anzeige? – Du siehst diese Anzeige basierend auf Ihrer Navigation auf unserer Website und den Suchkriterien, die du verwendet hast.
Lage
Zu Fuß sind sie in 5 Minuten in der Innenstadt von Annaberg mit ihren zahlreichen verschiedenen Geschäften und dem Herzstück der Innenstadt dem Marktplatz. Dienstag und Freitags ist hier in den Sommermonaten Markttag, wo sie frisches Obst und Gemüse sowie andere einheimische Produkte kaufen können. Auch einen spontanen Kino...
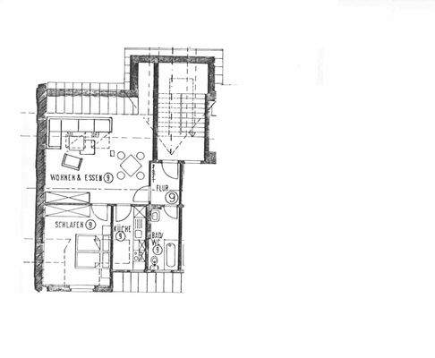
Die Wohnung
Wohnungslage
4. Geschoss (Dachgeschoss)
Bezug
sofort
Wohnanlage
Energie & Heizung
Warum sehe ich diese Anzeige? – Du siehst diese Anzeige basierend auf Ihrer Navigation auf unserer Website und den Suchkriterien, die du verwendet hast.
Energieausweistyp
Verbrauchsausweis
Gebäudetyp
Wohngebäude
Baujahr laut Energieausweis
1900
Wesentliche Energieträger
Gas
Gültigkeit
13.08.2008 bis 01.08.2018
Endenergieverbrauch
95,54 kWh/(m²·a) - Warmwasser enthalten
Weitere Energiedaten
Energieträger
Gas
Heizungsart
Zentralheizung
Details
Objektbeschreibung
Diese schöne 2-Raumwohnung im Dachgeschoss eines gepflegten Mehrfamilienhauses sucht ab sofort einen neuen Mieter.
In der Wohnung ist Laminat verlegt. Die großen Dachliegefenster lassen sehr viel Licht in den Wohnbereich.
Das Tageslichtbad verfügt über eine Badewanne mit Duschabtrennung.
Für zusätzlichen...
Ausstattung
- Tageslichtbad
- Badewanne mit Duschwand
Weitere Informationen
Stichworte
Anzahl der Schlafzimmer: 1, Anzahl der Badezimmer: 1
Anbieter der Immobilie

Der Wohnungsschlüssel
Kleinrückerwalder Str. 13, 09456 Annaberg-Buchholz
Online-ID: 2msbu5q
Referenznummer: 1734
Finde Angebote wie dieses
Weitere Immobilien
Hier geht es zu unserem Impressum, den Allgemeinen Geschäftsbedingungen, den Hinweisen zum Datenschutz und nutzungsbasierter Online-Werbung.