
EHL Gewerbeimmobilien GmbH
Herr Christoph Paul
+43 ···
Nr. anzeigenPreise & Kosten
inkl. Betriebskosten
Kaution
3-6 BMM
Provision für Mieter
3 Bruttomonatsmieten zzgl. 20% USt.
Warum sehe ich diese Anzeige? – Du siehst diese Anzeige basierend auf Ihrer Navigation auf unserer Website und den Suchkriterien, die du verwendet hast.
Die Ladenfläche
Kategorie
Laden
Bezug
ab sofort
Energie & Heizung
Warum sehe ich diese Anzeige? – Du siehst diese Anzeige basierend auf Ihrer Navigation auf unserer Website und den Suchkriterien, die du verwendet hast.
Heizwärmebedarf (HWB)
61,40 kWh/(m²·a)
Gesamtenergieeffizienz (fGEE)
0,63
Details
Objektbeschreibung
Mitten im aufstrebenden Stadtteil Atzgersdorf im 23. Bezirk in Wien bietet die Fabrik1230 flexibel gestaltbare Büro- und Ordinationsflächen in einem modern gestalteten Ambiente.
Darüber hinaus stehen potentiellen Interessenten auch sehr funktional nutzbare Gewerbeflächen mit großen Raumhöhen und guter Bodenbelastbarkeit...
Ausstattung
- Elektrischer außenliegender, südseitiger Sonnenschutz
- Feinsteinzeug im ausgestatteten Sanitärbereich
- Terrassen mit Holzbelag
- Sichtbare Stahlbetondecke
- Heiz- und Kühlsystem über Betonkernaktivierung und Fußbodenheizung im Sanitärbereich
- Mechanische Be- und Entlüftung (ca. 2 bis 5-facher...
Preisinformation
Nettokaltmiete: 14.508,56 EUR
Weitere Informationen
Sonstiges
Wir weisen darauf hin, dass zwischen dem Vermittler und dem Auftraggeber ein wirtschaftliches Naheverhältnis besteht. Der Vermittler ist als Doppelmakler tätig.
Stichworte
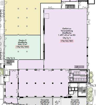
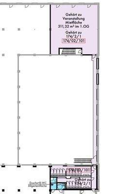
Garage vorhanden, Nutzfläche: 2.001,18 m², Bundesland: Wien
Anbieter der Immobilie
EHL Gewerbeimmobilien GmbH
Prinz-Eugen-Strasse 8-10, 1040 WIEN

Online-ID: 2msc95k
Referenznummer: R2501339
Finde Angebote wie dieses
Hier geht es zu unserem Impressum, den Allgemeinen Geschäftsbedingungen, den Hinweisen zum Datenschutz und nutzungsbasierter Online-Werbung.